首页
首页
建筑图纸
建筑规划图
建筑规划图
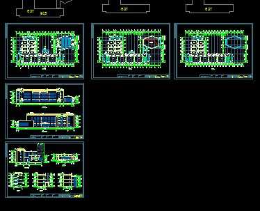
某影院建筑设计图
四层改造面积为8813平方米,另新增电影放映机房774平方米,即共计改造面积9587平方米。本工程合理使用年限为50年。电影厅的质量标准等级为乙级,相应设施按该等级设置。
某住宅小区综合规划平面图
某住宅小区综合规划平面图,供各位参考
某小区住宅楼建筑施工图
施工图包括各层平面图,立面图,剖面图,户型放大平面图,楼梯大样及详图,门窗表,还有结构,给排水,暖通图.供各位参考
某住宅式私人会所建筑设计图
本工程为四层钢筋混凝土框架(无梁楼板)结构,首层层高3.0米,二,三,四层均为3.6米,总建筑面积663.82平方米.本地区抗震设防烈度为六度.本工程防火等级一级,耐久年限二级(50年)
某住宅小区总规划图
某住宅小区总规划图,供各位参考
某展览中心建筑施工图
包括3#楼梯间-4.500标高平面图,3#楼梯间±0.00标高及卫生间平面图,室内工程做法表,二层平面,屋面排水平面图,三层平面,四层平面,地下层平面等,供各位参考
某医院住院楼建筑施工图
建筑耐久年限:一级(100年),建筑类别:一类高层建筑,耐火等级:耐火等级一级,建筑占地面积:2650.8m2,建筑层数:地下1层,地上18层,建筑总高69.5m2,供各位参考
某医院综合楼建筑施工图
本工程结构类型为:KP1型承重空心砖混合结构.结构安全等级为二级.建筑抗震设防分类为丙类建筑, 建筑抗震设防烈度为七度设防.场地类别为III类.供各位参考
某医院综合楼建筑立面图
某医院综合楼建筑立面图,包括立面图及效果图一张,供各位参考
某单位综合楼建筑施工图
包括地下车库平面图,一层平面图,二层平面图,三层平面图,四~十一层平面图,十二~十五层平面图,十六层平面图,十七层平面图,电梯缓冲层平面图等,供各位参考
某沿街商铺建筑施工图
建筑设计使用年限:3类(50年),建筑耐火等级:二级,建筑抗震设防烈度:八度,结构类型:三层框架(屋面防水等级:Ⅲ级.热力设计分区:Ⅱ区省内三区),供各位参考
某学校学生活动中心建筑方案设计图
本观演厅适用于放电影、做学术报告等,演讲台(舞台)高0.70m,银幕底高1.80m,观演厅总座位数1830座,每座1.06m2,观演厅总排数为29排,前后排错位排列。供各位参考
某学校体育馆建筑方案图
某学校体育馆建筑方案图,包括北立面图,西立面图,一层平面图,东立面图,南立面图,剖面图,屋顶平面图,二层平面图等,供各位参考
某学校食堂建筑施工图
9.设计范围:红线范围内地上建筑单体的建筑专业设计。结构、给排水、电气、暖通详各专业施工图,智能化、绿化、景观照明、市政、幕墙等另行设计。
某学校综合楼建筑施工图
某学校综合楼建筑施工图,包括小学一层平面图,小学二层平面图,小学三层平面图,小学四层平面图,小学屋顶平面图,小学剖面等,供各位参考
某学校建筑方案设计图
本人防工程建筑面积1980m2,掩蔽面积为1180m2。本人防工程人员掩蔽所为一个防护单元,防护单元面积不超过2000m,防护单元分为四个抗爆单元,面积不超过500m2.供各位参考
某学校报告厅及阶梯教室设计图
某学校报告厅及阶梯教室设计图,包括3#楼梯、更衣室、厕所平面图,2#楼梯顶层平面图,平面轴线定位图,首层平面图,二层平面图等,供各位参考
某小学教学楼建筑施工图
本工程地上建筑面积为1300平方米,建筑层数为地上三层,建筑高度为11.6米,本建筑后续使用年限40年,为抗震鉴定标准的A类建筑。抗震设防类别为标准设防类(乙类)。
某小区建筑规划图
某小区建筑规划图,包括社区规划总平面图,社区道路分析图,社区景观绿地分析图,社区用地功能分析图,社区日照分析图,社区规划总平面图,供各位参考
某小区规划建筑图
某小区规划建筑图,供各位参考
首页
上一页
下一页
尾页