首页
分享
首页
工业、农业建筑
内容
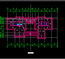
某酒店健身中心建筑施工图纸
资料大小
:727 KB
运行环境
:NT/2000/XP/2003/Vista
资料语言
:简体中文
资料评级
:
授权形式
:资料共享
更新时间
:2016-06-03 15:03
发布作者
:2794901225
插件情况
:
无插件,请放心使用
文件类型
:
RAR
解压密码
:gc5.com
安全检测
:
瑞星
江民
卡巴斯基
金山
介绍: 某酒店健身中心建筑施工图纸包括屋顶平面图、一层平面图、地下一层平面图、D-D剖面图、A-A剖面图、B-B剖面图等
查看全文
点击进入下载
(需要
0
积分)
相关文章
某酒店健身中心建筑施工图
20150627
某健身中心建筑施工图
20131207
某酒店健身中心建筑施工图
20130910
某酒店健身中心建筑施工图
20140212
健身中心及变电房建筑施工图纸
20181109
回到顶部
请复制以下网址分享
某酒店健身中心建筑施工图纸
https://m.gc5.com/jzgc/jztz/gyny/10872945.html