首页
分享
首页
工业、农业建筑
内容
某宾馆建筑设计图纸
资料大小
:878 KB
运行环境
:NT/2000/XP/2003/Vista
资料语言
:简体中文
资料评级
:
授权形式
:资料共享
更新时间
:2016-07-16 10:30
发布作者
:芭啦芭啦hh
插件情况
:
无插件,请放心使用
文件类型
:
RAR
解压密码
:gc5.com
安全检测
:
瑞星
江民
卡巴斯基
金山
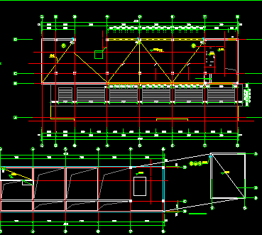
介绍: 某宾馆建筑设计图纸包括出屋面踏步详图、屋顶钢架俯视平面图、屋顶钢架立面图、剖面图、立面图、首层平面图等。
查看全文
点击进入下载
(需要
0
积分)
相关文章
宾馆建筑设计图纸
20160715
宾馆建筑设计图纸
20160927
宾馆建筑设计图纸
20160927
欧式宾馆建筑设计图纸
20150121
某宾馆建筑设计图纸
20160408
回到顶部
请复制以下网址分享
某宾馆建筑设计图纸
https://m.gc5.com/jzgc/jztz/gyny/10882265.html