首页
分享
首页
工业、农业建筑
内容
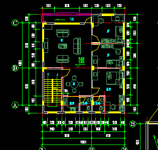
三层私人住宅楼建筑施工图纸
资料大小
:471 KB
运行环境
:NT/2000/XP/2003/Vista
资料语言
:简体中文
资料评级
:
授权形式
:资料共享
更新时间
:2016-07-17 15:36
发布作者
:芭啦芭啦hh
插件情况
:
无插件,请放心使用
文件类型
:
RAR
解压密码
:gc5.com
安全检测
:
瑞星
江民
卡巴斯基
金山
介绍: 三层私人住宅楼建筑施工图纸包括首层平面图、夹层平面图、二~三层平面图、天面平面图、立面图、A-A剖面图、梯室顶平面图、阳台平面图、阳台侧立面图等。
查看全文
点击进入下载
(需要
0
积分)
相关文章
三层住宅楼建筑施工图纸
20200519
三层住宅楼建筑施工图纸
20180911
三层住宅楼建筑施工图纸
20180930
三层住宅楼建筑施工图纸
20160716
三层住宅楼建筑施工图纸
20161021
回到顶部
请复制以下网址分享
三层私人住宅楼建筑施工图纸
https://m.gc5.com/jzgc/jztz/gyny/10882814.html