首页
首页
建筑图纸
工业、农业建筑
工业、农业建筑
某医院建筑施工图(pdf格式)
某医院建筑施工图(pdf格式)内含平面图,立面图,剖面图等等供大家参考。
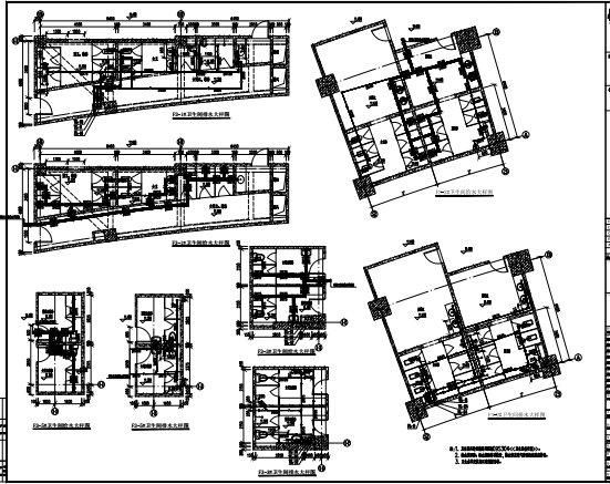
某医院建筑结构施工图(含水电暖pdf格式)
某医院建筑结构施工图(含水电暖pdf格式)包括门窗详图、总平面图、地下二层平面图、地下一层平面图、首层平面图、二层平面图、三层平面图、四层平面图、设备夹层平面图、五层平面图
某医院建筑结构施工图(含水电暖pdf格式)
某医院建筑结构施工图(含水电暖pdf格式)内含建筑图纸,结构图纸,给排水图纸,电气图纸,暖通图纸供大家参考。
某幼儿园建筑结构全套施工图(含水电暖)
某幼儿园建筑结构全套施工图(含水电暖)包括建筑图纸,结构图纸,给排水图纸,电气图纸,暖通图纸供大家参考。
某商住楼建筑结构全套施工图(含水电暖)
某商住楼建筑结构全套施工图(含水电暖)包括建筑图纸,结构图纸,给排水图纸,暖通图纸,电气图纸供大家参考。
某商住楼建筑结构施工图(含水电暖)
某商住楼建筑结构施工图(含水电暖)包括建筑图纸,结构图纸,给排水图纸,暖通图纸,电气图纸供大家参考。
养猪场施工图纸
养猪场施工图纸包括总平面图、底层平面现状图、底层平面改造图、立面图、剖面图、底层平面图、屋顶平面图、轴立面图、立面图等
某工业园配电房建筑设计图
某工业园配电房建筑设计图内含平面图,立面图,剖面图供大家参考。
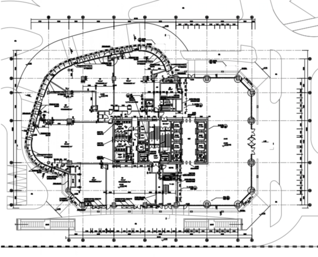
某医院全套建筑施工图
某医院全套建筑施工图内含总平面图,消防分析图,轴网定位图,平面图,坡道详图,墙体平面图,板边、留洞、降板图,污水处理详图等等供大家参考。
某学校建筑幕墙施工图
某学校建筑幕墙施工图内含平面图,立面图,剖面图,轴立面埋件图,平面埋件图,石材幕墙节点图,石材幕墙防雷节点图,石材幕墙立柱与主体连接,等供大家参考。
供热锅炉房施工图纸
中供热锅炉房工程,总建筑面积1200.63平方米,建 筑总高20.400米;结构类型:框架--门式钢架结构;层数:地上3层,建筑类别:三类;抗震设防烈度:6度;
某商务城建筑施工图(pdf格式)
某商务城建筑施工图(pdf格式)内含平面图,立面图,剖面图,大样图等等供大家参考。
某商业楼建筑结构全套施工图(含水电暖pdf格式)
某商业楼建筑结构全套施工图(含水电暖pdf格式)内含建筑图纸,结构图纸,给排水图纸,电气图纸,暖通图纸供大家参考。
砖混结构商住楼建筑施工图
砖混结构商住楼建筑施工图内含平面图,立面图,剖面图等等供大家参考。
某酒店建筑结构全套施工图(含水电暖)
某酒店建筑结构全套施工图(含水电暖)内含建筑图纸,结构图纸,给排水图纸,电气图纸,暖通图纸供大家参考。
某酒店建筑施工图(含效果图)
某酒店建筑施工图(含效果图)包括平面图,立面图,剖面图,大样图等等供大家参考。
某住宅区住宅楼建筑全套施工图纸
本工程建筑设计使用年限为50年,高层建筑每个单元均设一部消防电梯;均设防烟楼梯间或封闭楼梯间;屋面防水等级均为一级;地上部分建筑耐火等级为二级,地下部分耐火等级为一级。
某住宅区住宅楼建筑施工图
某住宅区住宅楼建筑施工图内含多栋住宅楼建筑图纸,包括平面图,立面图,剖面图等等供大家参考。
某酒店建筑施工图纸(含效果图)
某酒店建筑施工图(含效果图)包括一层平面图、二层平面图、三层平面图、四层平面图、五~十八层平面图、机房层平面图、屋面层平面图、立面图、楼梯大样、厨卫大样图、门窗表、门窗立面图、节点大样等
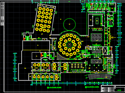
某商业街建筑施工图(含效果图)
某商业街建筑施工图(含效果图)内含平面图,立面图,剖面图等等供大家参考。
首页
上一页
下一页
尾页