首页
首页
建筑图纸
工业、农业建筑
工业、农业建筑
某三星级高层宾馆建筑设计图
某三星级高层宾馆建筑设计图内含平面图,立面图,剖面图供大家参考。
二层食堂建筑平面设计图
二层食堂建筑平面设计图,供大家参考。
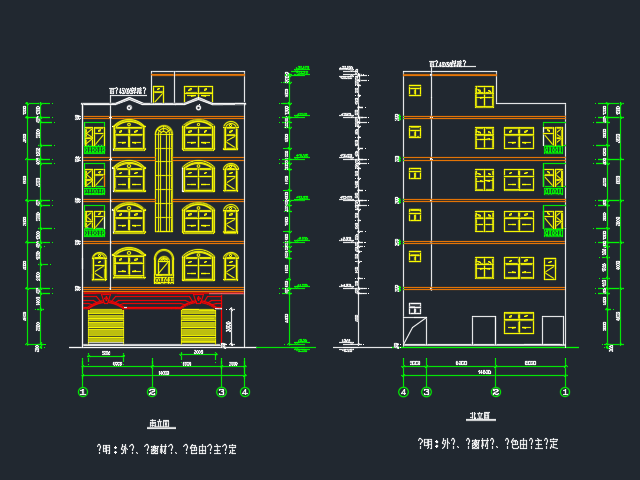
某五层酒店建筑施工图
某五层酒店建筑施工图内含平面图,立面图,剖面图供大家参考。
九层酒店建筑施工图
九层酒店建筑施工图内含平面图,立面图,剖面图,大样图等等供大家参考。
二层食堂建筑设计图
二层食堂建筑设计图内含平面图,立面图,剖面图,大样图供大家参考。
二层商业楼建筑施工图
二层商业楼建筑施工图内含平面图,立面图,剖面图,大样图供大家参考。
某二层商店建筑施工图
某二层商店建筑施工图内含平面图,立面图,剖面图供大家参考。
某二层会所建筑设计图
某二层会所建筑设计图内含平面图,立面图供大家参考。
六层住宅楼建筑设计图
六层住宅楼建筑设计图内含平面图,立面图供大家参考。
五层商住楼建筑设计图
五层商住楼建筑设计图,供大家参考。
某三层商场建筑平面设计图
某三层商场建筑平面设计图,供大家参考。
三层饭店建筑施工图
三层饭店建筑施工图内含平面图,立面图,剖面图供大家参考。
某五层厂房建筑施工图
某五层厂房建筑施工图内含平面图,立面图,剖面图供大家参考。
六层办公楼建筑施工图
六层办公楼建筑施工图内含平面图,立面图,剖面图,台阶详图,节点详图,雨篷详图、散水、坡道详图等等供大家参考。
某四层办公楼建筑施工图
某四层办公楼建筑施工图内含平面图,立面图供大家参考。
度假村三层欧式酒店建筑设计图
度假村三层欧式酒店建筑设计图内含平面图,立面图供大家参考。
度假村三层酒店建筑设计图
度假村三层酒店建筑设计图内含平面图,立面图,剖面图供大家参考。
某六层度假酒店建筑施工图
某六层度假酒店建筑施工图内含平面图,立面图,剖面图,大样图供大家参考。
某步行街门楼牌坊设计图
某步行街门楼牌坊设计图,供大家参考。
某十三层酒店建筑设计图
某十三层酒店建筑设计图内含有平面图,立面图,剖面图供大家参考。
首页
上一页
下一页
尾页