首页
首页
建筑图纸
工业、农业建筑
工业、农业建筑
二十一层商住楼全套建筑施工图纸
二十一层商住楼全套建筑施工图纸包括十五层平面图、A栋四~十四平面图、跃层平面图、A、B栋二层平面图、1-1剖面图等
某大厦建筑设计图纸
某大厦建筑设计图纸包括轴立面图、一层平面图、屋顶平面图、三层平面图、二层平面图、1-1剖面图、卫生间平面示意图、护栏立面图、竖挺及护栏剖面图、垂直防潮层做法、
某多层综合楼建筑平面施工图纸
某多层综合楼建筑平面施工图纸包括地下室平面、底层平面、二层平面、技术层平面、屋面平面、电梯井道标准层平面等
某住宅楼建筑设计图纸
某住宅楼建筑设计图纸包括立面图、首层平面图、屋顶平面图、1-1剖面图等。
十二层商住楼全套建筑施工图纸
十二层商住楼全套建筑施工图纸包括夹层平面图、十一层平面图、十二层平面图、入口门楼屋顶平面图、阳台大样图、卫生间平面图等
某办公大楼建筑设计图纸
某办公大楼建筑设计图纸包括南立面图、屋顶平面图、井道平面图、机房平面图、井道剖面图、电梯详图、四层平面图、下一层平面图、剖面图、二层平面图、五层平面图等。
高层住宅楼平面建筑设计图纸
高层住宅楼平面建筑设计图纸包括屋顶平面图、电梯机房平面图、四层平面图、五层-九层(跃层底层)平面图、首层平面图等
小高层住宅楼建筑施工图纸
小高层住宅楼建筑施工图纸包括架空层平面图、标准层平面图、复式一层平面图、复式二层平面图、坡顶闷顶平面图、坡屋顶平面图等
某收费站建筑设计图纸(及鸟瞰图)
某收费站建筑设计图纸(及鸟瞰图)包括剖面图、B4型二层平面图、楼面洞口加强示意图、卫生间楼板加强示意图、柱平面整体配筋图、二层屋面结构平面布置图、楼梯2底层平面图
九层住宅楼建筑设计图纸
九层住宅楼建筑设计图纸包括首层平面图、半地下室平面图、南立面图、北立面图、侧立面图、坡顶闷顶平面图、屋顶平面图等
轻钢厂房建筑设计图纸
轻钢厂房建筑设计图纸包括一层平面图、轴立面图、B--B剖面图、屋顶平面图等。
人防建筑施工图纸
人防建筑施工图纸包括地下室平面图、地下二层平面图、 地下人防层平时平面图、地下一层战时平面图、人防防护单元图、地下层平面图、地下车库战时平面图等。
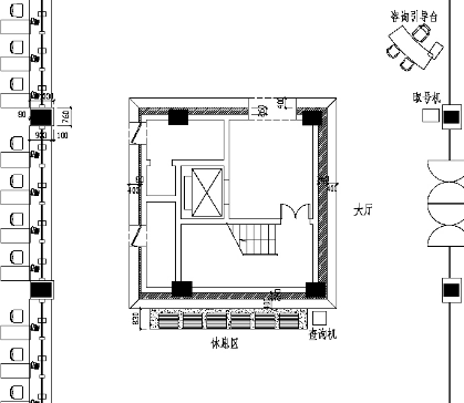
某营业厅建筑设计图纸(含效果图)
某营业厅建筑设计图纸(含效果图)包括一层平面图等,供参考!
11层住宅楼全套建筑设计图纸
11层住宅楼全套建筑设计图纸包括一层平面图、二层平面图、标准层平面图、十层平面图、北立面图、屋顶平面图、十一层平面图等
某大学研究院建筑设计图纸
某大学研究院建筑设计图纸包括叠泉平面图、组团平面图、一层平面图、南立面图、二层平面图、地下水收集院落地面构造图、窗台小温室种植设计剖面图、2-2剖面图等。
十六层人防办住宅楼全套建筑设计图纸
十六层人防办住宅楼全套建筑设计图纸包括二~九层平面图、十~十六层平面图、电梯间层平面图、屋顶排水图、A-B户型放大平面图等
百货超市建筑设计图纸
百货超市建筑设计图纸包括一楼平面图、二楼平面图、三楼平面图等。
某十二层住宅楼全套建筑施工图纸
某十二层住宅楼全套建筑施工图纸包括二层平面图、一层平面图、楼梯二层平面大样、地下层平面图、楼梯一二剖面大样、十一层平面图等
某医院建筑设计图纸
某医院建筑设计图纸包括五层平面图、四层平面图、三层平面图、一层平面图等。
23层住宅楼建筑施工图纸
23层住宅楼建筑施工图纸包括机房层平面、飘板层平面、屋顶层平面、标准层平面、北立面、三层平面、二层平面、一层平面等
首页
上一页
下一页
尾页