首页
分享
首页
建筑详图、图库
内容
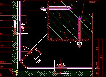
干挂石材外墙90度外转角横剖节点详图(阳角)
资料大小
:46 KB
运行环境
:NT/2000/XP/2003/Vista
资料语言
:简体中文
资料评级
:
授权形式
:资料共享
更新时间
:2012-12-29 21:32
发布作者
:wg-萌馒头
插件情况
:
无插件,请放心使用
文件类型
:
RAR
解压密码
:gc5.com
安全检测
:
瑞星
江民
卡巴斯基
金山
介绍: 干挂石材外墙90度外转角横剖节点详图,dwg文件格式,供大家参考!
查看全文
点击进入下载
(需要
0
积分)
相关文章
干挂石材节点详图
20130510
干挂石材节点详图
20130831
干挂石材节点详图
20130510
干挂石材幕墙节点详图
20121228
干挂石材节点详图
20150510
回到顶部
请复制以下网址分享
干挂石材外墙90度外转角横剖节点详图(阳角)
https://m.gc5.com/jzgc/jztz/tuku/10408002.html