首页
分享
首页
建筑详图、图库
内容
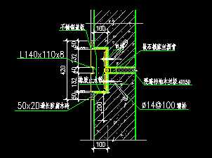
可卸及埋入式止水变形缝侧墙详图
资料大小
:20 KB
运行环境
:NT/2000/XP/2003/Vista
资料语言
:简体中文
资料评级
:
授权形式
:资料共享
更新时间
:2015-03-04 19:32
发布作者
:美腻怪阿姨
插件情况
:
无插件,请放心使用
文件类型
:
RAR
解压密码
:gc5.com
安全检测
:
瑞星
江民
卡巴斯基
金山
介绍: 可卸及埋入式止水变形缝侧墙详图,设计师可直接套用,供各位参考
查看全文
点击进入下载
(需要
0
积分)
相关文章
建筑工程节点大样图
20180724
建筑工程细部节点大样图
20180725
建筑工程常用节点图
20130616
建筑工程常用节点大样图
20120728
建筑防水工程节点大样图
20180725
回到顶部
请复制以下网址分享
可卸及埋入式止水变形缝侧墙详图
https://m.gc5.com/jzgc/jztz/tuku/10759394.html