首页
分享
首页
建筑详图、图库
内容
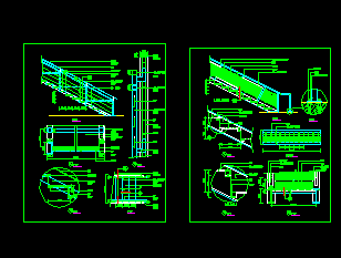
楼梯施工详图
资料大小
:1.09 MB
运行环境
:NT/2000/XP/2003/Vista
资料语言
:简体中文
资料评级
:
授权形式
:资料共享
更新时间
:2015-06-04 10:30
发布作者
:摇拽的菟丝花
插件情况
:
无插件,请放心使用
文件类型
:
RAR
解压密码
:gc5.com
安全检测
:
瑞星
江民
卡巴斯基
金山
介绍: 楼梯施工详图包括楼梯平面图、楼梯立面图、踏步立面图、踏板平面图、剖面图
查看全文
点击进入下载
(需要
0
积分)
相关文章
楼梯结构详图
20130725
结构楼梯设计详图
20160922
楼梯设计详图
20130316
楼梯设计详图
20140413
楼梯栏杆设计详图
20120331
回到顶部
请复制以下网址分享
楼梯施工详图
https://m.gc5.com/jzgc/jztz/tuku/10791092.html