首页
分享
首页
建筑详图、图库
内容
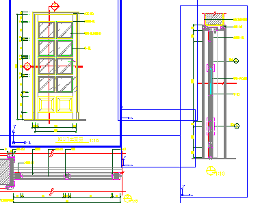
法式别墅门详图
资料大小
:614 KB
运行环境
:NT/2000/XP/2003/Vista
资料语言
:简体中文
资料评级
:
授权形式
:资料共享
更新时间
:2016-05-05 11:28
发布作者
:短发QQ
插件情况
:
无插件,请放心使用
文件类型
:
RAR
解压密码
:gc5.com
安全检测
:
瑞星
江民
卡巴斯基
金山
介绍: 法式别墅门详图包括门立面图,供参考!
查看全文
点击进入下载
(需要
0
积分)
相关文章
别墅入户门节点详图
20221130
别墅入户门详图
20120407
别墅入户门详图
20150314
别墅入户门详图
20121025
别墅入户门设计详图
20161214
回到顶部
请复制以下网址分享
法式别墅门详图
https://m.gc5.com/jzgc/jztz/tuku/10862486.html