首页
首页
建筑图纸
建筑详图、图库
建筑详图、图库
CAD常用衣柜图库
CAD常用衣柜图库包括高度2M的衣柜剖面、高度2.2M的衣柜剖面、高度2.4M的衣柜剖面、高度2.8M的衣柜剖面等
室内装修立面详图
室内装修立面详图,供大家参考!
围墙栏杆CAD图纸
围墙栏杆CAD图纸,供大家参考!
CAD室内图库
CAD室内图库包括沙发、洁具、桌椅等,供大家参考!
别墅外立面图库
别墅外立面图库,供大家参考!
电梯施工详图
电梯施工详图包括机房平面布置图、井道平面布置图、底坑平面布置图、1号预埋件型式图等
CAD常用楼梯大样图
CAD常用楼梯大样图,供大家参考!
14层楼电梯间及井道详图
14层楼电梯间及井道详图包括井道剖面图、一单元井道平面图、一单元机房平面图、三单元机房平面图、埋件详图、吊钩安置图等
15款电梯间详图
15款电梯间详图包括立面图、平面图、顶棚布置图、剖面图、大样图等,供大家参考!
15款楼梯施工详图
15款楼梯施工详图包括立面图、剖面图、大样图、平面图等,供大家参考!
客货梯井道大样图
客货梯井道大样图包括客梯3井道剖面图、客梯4井道剖面图 、货梯1井道剖面图、剖面、货梯2井道大样图、一层平面、二至五层平面等
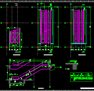
自动扶梯大样图
自动扶梯大样图包括五层平面图、二至四层平面图、一层平面图、A-A剖面等,供大家参考!
观光电梯详图
观光电梯详图包括电梯A井道1-3层平面详图、电梯A井道地下层平面详图、电梯A屋顶机房平面详图、1-1剖面图、电梯B机房平面图等
五层楼梯大样图
五层楼梯大样图包括地下一层平面图、五层平面图、一层平面图、二至四层平面图、A-A剖面图、机房层平面图等
电梯节点详图
电梯节点详图包括电梯基坑平面图、电梯机房平面图、电梯井道平面图、电梯1-1剖面图等
钢楼梯大样图
钢楼梯大样图包括楼梯平面图1、楼梯平面图2、钢柱基础节点、斜梁基础节点、楼梯平面图3等
五层电梯大样图
五层电梯大样图包括标准层平面图、基坑层平面图、机房层平面图、1-1剖面图等
办公楼楼梯大样图
办公楼楼梯大样图包括地下层平面、一层平面、自动人行道大样、中心线展开剖面、窗台下护栏大样、二~四层平面、机房平面、井道平面等
拼花平面图库
拼花平面图库,供大家参考!
CAD客厅装修图库
CAD客厅装修图库,供大家参考!
首页
上一页
下一页
尾页