首页
首页
建筑图纸
建筑详图、图库
建筑详图、图库
武装部大门大样图
武装部大门大样图包括入口大门立面、武装部大门立面等,供大家参考
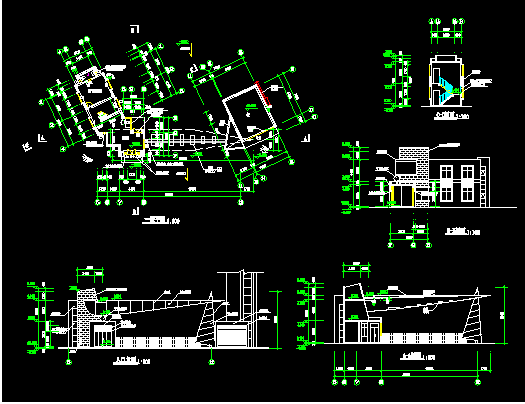
小学大门建筑设计图
小学大门建筑设计图包括平面图、入口立面、剖面、入口背立面展开图、侧里面图等,供大家参考
小区别致大门全套图
小区别致大门全套图,供大家参考
厂房东大门建筑施工图
厂房东大门建筑施工图包括围墙及砖柱基础剖面图、平面图、立面图等,供大家参考
景观大门施工图
景观大门施工图包括轴景墙立面图、平面图、剖面图,供大家参考
邮电大楼门楼施工图
邮电大楼门楼施工图,供大家参考
中式古典大门施工图
中式古典大门施工图包括平面图,立面图,剖面图,供大家参考
中学大门施工图
中学大门施工图包括平面图、立面图、剖面图等,供大家参考
住宅大门施工图
住宅大门施工图,供大家参考
常用门建筑图块(三)
常用门建筑图块(三),供大家参考
常用门建筑图纸(二)
常用门建筑图纸(二),供大家参考
某单位大门门棚设计图
某单位大门门棚设计图,供大家参考
某人民武装部门卫施工图纸
某人民武装部门卫图纸,供大家参考
某学院东大门大样图
某学院东大门大样图带效果图,供大家参考
某小区几个大门施工图
某小区几个大门施工图,供大家参考
常用门建筑图块
常用门建筑图块,供大家参考
某厂区大门及传达室详图
某厂区大门及传达室详图,供大家参考
某大酒店门大样图
某大酒店门大样图,供大家参考
某工程大门施工图
某工程大门施工图,供大家参考
某公司大门建施图
某公司大门建施图,供大家参考
首页
上一页
下一页
尾页