首页
首页
建筑图纸
建筑详图、图库
建筑详图、图库
酒店电视柜详图
酒店电视柜详图,供参考!
酒店大堂石材柱详图
酒店大堂石材柱详图包括机刨石柱立面图、剖面图、详图、天花镜钢百叶吊顶详图,供参考!
酒店客房淋浴池装修详图
酒店客房淋浴池详图包括平面大样图、剖面大样图、大样图,供参考!
酒店双人标房装修详图
酒店双人标房装修详图包括双人标准房(B)平面布置图、双人标准房(B)顶面布置图、双人标准房(B)A视点立面图、客房卫生间墙面剖面图、客房墙面剖面图,供参考!
酒家过厅服务台装修详图
酒家过厅服务台详图包括平面图、大样图、剖面图、立面图,供参考!
游泳池大理石饰面设计节点图
游泳池大理石饰面设计节点图包括游泳池裙边节点图等,供参考!
酒楼海鲜池详图
包括立面图 、剖面图、大样图,供参考!
大理石阴角线与石膏板收口节点图
大理石阴角线与石膏板收口节点图,供参考!
客厅主立面详图
客厅主立面详图,供参考!
大理石与地毯收口节点图
大理石与地毯收口节点图,供参考!
大理石与石膏板收口节点图
大理石与石膏板收口节点图,供参考!
酒店门槛石装修图详集
酒店门槛石详图集包括休闲区通卫生间门槛石大样、走廊通客房门槛石大样、 睡房通卫生间门槛石大样、工人房卫生间门槛设计图、工作阳台通机房门槛石大样,供参考!
大堂水景之石材与钢化玻璃设计详图
大堂水景之石材与钢化玻璃设计详图,供参考!
地面石材与幕墙节点大样图
地面石材与幕墙节点大样图包括地砖与幕墙收口剖面图、复合地板地台与地砖地面剖面图、地砖+复合地板剖面图、轻钢龙骨隔墙80高1.2厚拉丝不锈钢踢脚线剖面图、门槛条(石材/地砖+石材门槛条+地砖)剖面图等
地面节点大样图
地面节点大样图,供参考!
客厅装修设计图
客厅装修详图包括五层客厅平面详图、五层客厅天花详图、过厅天花详图、过厅地面详图、五层客厅立面图,供参考!
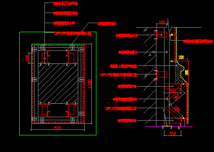
方柱石材干挂设计详图
方柱石材干挂设计详图,供参考!
门大样图
门大样图包括立面图、剖面图,供参考!
干挂石材设计大样图
干挂石材设计大样图包括干挂石材横向剖面大样图、干挂石材竖向剖面大样图等,供参考!
别墅节点详图
别墅节点详图,供参考!
首页
上一页
下一页
尾页