首页
首页
建筑图纸
建筑详图、图库
建筑详图、图库
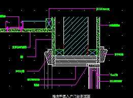
平开门与单元幕墙连接节点
该图为平开门与单元幕墙连接节点,CAD2008版,供各位参考。
日式推拉门详图
该图为日式推拉门详图,CAD2008版,供各位参考。
售楼处入口门套详图
该图为售楼处入口门套详图,CAD2008版,供各位参考。
走廊柱子详图
该图为走廊柱子详图,CAD2008版,供各位参考。
双开防火门深化图
该图为双开防火门深化图,CAD2008版,供各位参考。
走廊双扇门详图
该图为走廊双扇门详图,CAD2008版,供各位参考。
子母门详图
该图为子母门详图,CAD2008版,供各位参考。
装饰柱详图
该图为装饰柱详图,内容包括有:装饰柱立面图,剖面图等,CAD2008版,供各位参考。
装饰圆柱详图
该图为装饰圆柱详图,CAD2008版,供各位参考。
装饰木门详图
该图为装饰木门详图,CAD2008版,供各位参考。
装饰门详图
该图为装饰门详图,CAD2008版,供各位参考。
装饰榉木门详图
该图为装饰榉木门详图,CAD2008版,供各位参考。
珠宝宫大门正立面图
该图为珠宝宫大门正立面图,CAD2008版,供各位参考。
种植屋面详图
该图为种植屋面详图,CAD2008版,供各位参考。
中式房门详图
该图为中式房门详图,CAD2008版,供各位参考。
造型柱详图
该图为造型柱详图,CAD2008版,供各位参考。
柚木平板单开门详图
该图为柚木平板单开门详图,CAD2008版,供各位参考。
印度式门样
该图为印度式门样,CAD2008版,供各位参考。
样板房单扇门详图
该图为样板房单扇门详图,CAD2008版,供各位参考。
旋转门详图
该图为旋转门详图,CAD2008版,供各位参考。
首页
上一页
下一页
尾页