首页
首页
建筑图纸
建筑详图、图库
建筑详图、图库
经典门厅立面图
该图为经典门厅立面图CAD2008版,供各位参考。
精致餐厅立面图
该图为精致餐厅立面图,CAD2008版,供各位参考。
北向天沟屋面详图
该图为北向天沟屋面详图,CAD2008版,供各位参考。
变形缝防水节点大样图
该图为变形缝防水节点大样图,CAD2008版,供各位参考。
变形缝与飘窗相交处详图
该图为变形缝与飘窗相交处详图,CAD2008版,供各位参考。
玻璃顶(隐框)泛水节点详图
该图为玻璃顶(隐框)泛水节点详图,CAD2008版,供各位参考。
玻璃幕墙底部收边节点
该图为玻璃幕墙底部收边节点,CAD2008版,供各位参考。
玻璃幕墙水平收边节点
该图为玻璃幕墙水平收边节点,CAD2008版,供各位参考。
玻璃石材连接节点图
该图为玻璃石材连接节点图,CAD2008版,供各位参考。
窗户处石材横剖面详图
该图为窗户处石材横剖面详图,CAD2008版,供各位参考。
窗户竖向剖面图
该图为窗户竖向剖面图,CAD2008版,供各位参考。
窗户水平剖面
该图为窗户水平剖面,CAD2008版,供各位参考。
窗套散水台阶节点详图
该图为窗套散水台阶节点详图,CAD2008版,供各位参考。
底板、侧墙防水节点大样图
该图为底板、侧墙防水节点大样图,CAD2008版,供各位参考。
底板防水节点大样图
该图为底板防水节点大样图,CAD2008版,供各位参考。
地毯踏步节点详图
该图为地毯踏步节点详图,CAD2008版,供各位参考。
地下室架空疏水防水构造(I级设防)
该图为地下室架空疏水防水构造(I级设防),CAD2008版,供各位参考。
地下室散水坡防水节点构造图
该图为地下室散水坡防水节点构造图,CAD2008版,供各位参考。
地下室疏水层平面布置图
该图为地下室疏水层平面布置图,CAD2008版,供各位参考。
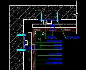
点式幕墙150系列节点详图
该图为点式幕墙150系列节点详图,CAD2008版,供各位参考。
首页
上一页
下一页
尾页