首页
首页
建筑图纸
建筑详图、图库
建筑详图、图库
屋面女儿墙防水节点大样图
该图为屋面女儿墙防水节点大样图,CAD2008版,供各位参考。
屋面女儿墙大样
该图为屋面女儿墙大样,CAD2008版,供各位参考。
屋面横向分仓缝
该图为屋面横向分仓缝,CAD2008版,供各位参考。
屋面分仓缝
该图为屋面分仓缝,CAD2008版,供各位参考。
屋顶踏步详图
该图为屋顶踏步详图,CAD2008版,供各位参考。
屋顶及女儿墙伸缩缝
该图为屋顶及女儿墙伸缩缝,CAD2008版,供各位参考。
屋顶防水图
该图为屋顶防水图,CAD2008版,供各位参考。
墙板与地面连接详图
该图为墙板与地面连接详图,CAD2008版,供各位参考。
墙板窗侧泛水详图
该图为墙板窗侧泛水详图,CAD2008版,供各位参考。
暗扣聚氨酯墙板窗台、窗楣泛水详图
该图为暗扣聚氨酯墙板窗台、窗楣泛水详图,CAD2008版,供各位参考。
暗扣聚氨酯墙板与地面连接详图
该图为暗扣聚氨酯墙板与地面连接详图,CAD2008版,供各位参考。
暗扣聚氨酯
该图为暗扣聚氨酯墙板与砖墙连接详图,CAD2008版,供各位参考。
暗扣聚氨酯墙板纵向搭接详图
该图为暗扣聚氨酯墙板纵向搭接详图,CAD2008版,供各位参考。
地上食用水池防水构造图
该图为地上食用水池防水构造图,CAD2008版,供各位参考。
地下室对拉模板螺栓(套管式、埋入式)节点防水图
该图为地下室对拉模板螺栓(套管式、埋入式)节点防水图,CAD2008版,供各位参考。
防雷安装节点详图
该图为防雷安装节点详图,CAD2008版,供各位参考。
聚氨酯墙板窗侧泛水详图
该图为聚氨酯墙板窗侧泛水详图,CAD2008版,供各位参考。
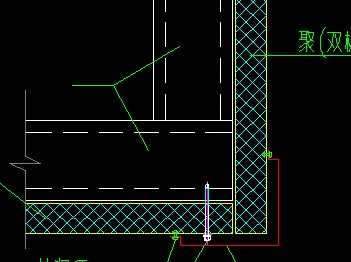
聚氨酯墙板墙角包角详图
该图为聚氨酯墙板墙角包角详图,CAD2008版,供各位参考。
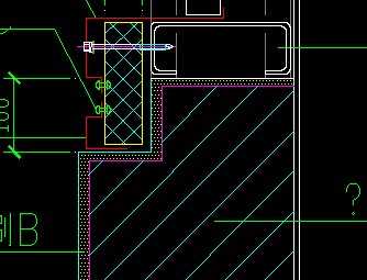
聚氨酯墙板与砖墙连接详图
该图为聚氨酯墙板与砖墙连接详图,CAD2008版,供各位参考。
聚氨酯墙板纵向搭接详图
该图为聚氨酯墙板纵向搭接详图,CAD2008版,供各位参考。
首页
上一页
下一页
尾页