首页
首页
建筑图纸
建筑详图、图库
建筑详图、图库
歌舞厅半隔断详图
该图为歌舞厅半隔断详图,CAD2008版,供各位参考。
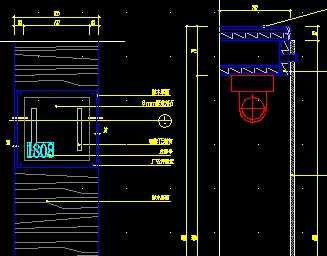
海鲜池剖面图
该图为海鲜池剖面图,CAD2008版,供各位参考。
海鲜池详图
该图为海鲜池详图,内容包括有:海鲜池平面图,海鲜池立面图,等,CAD2008版,供各位参考。
黑檀木饰面服务台详图
该图为黑檀木饰面服务台详图,内容包括有:服务台背立面大样,服务台正立面大样,等,CAD2008版,供各位参考。
简约标准客房立面图
该图为简约标准客房立面图,内容包括有:标准间平面布置图,标准间天棚布置图等CAD2008版,供各位参考。
酒店标准间平面图
该图为酒店标准间平面图,CAD2008版,供各位参考。
酒店大堂卫生间立面图
该图为酒店大堂卫生间立面图,内容包括有:大堂男卫生间立面图等,CAD2008版,供各位参考。
玄关装修工程详图
玄关装修工程详图,供大家参考!
酒店大堂装饰隔断详图
该图为酒店大堂装饰隔断详图,内容包括有:大堂隔断造型柜立面图,侧立面图,大样图等,CAD2008版,供各位参考。
酒店个性公共卫生间立面图
该图为酒店个性公共卫生间立面图,CAD2008版,供各位参考。
酒店简约标准间立面图
该图为酒店简约标准间立面图,内容包括有:标准间平面布置图,标准间立面图,等,CAD2008版,供各位参考。
酒店客卧卫生间立面图
该图为酒店客卧卫生间立面图,内容包括有:各立面图 等,CAD2008版,供各位参考。
酒店双门衣柜详图
该图为酒店双门衣柜详图,内容包括有:酒吧、大衣柜平面图,大衣柜内结构立面图,酒柜侧立面图等,CAD2008版,供各位参考。
客房层服务台大样
该图为客房层服务台大样,CAD2008版,供各位参考。
客房酒吧吧台详图
该图为客房酒吧吧台详图,CAD2008版,供各位参考。
客房门号显示牌详图
该图为客房门号显示牌详图,内容包括有:客房门号显示牌详图,客房门号显示牌详图,等,CAD2008版,供各位参考。
客房卫生间立面图
该图为客房卫生间立面图,CAD2008版,供各位参考。
门套详图
该图为门套详图,CAD2008版,供各位参考。
墙面装饰及吊顶详图
该图为墙面装饰及吊顶详图,CAD2008版,供各位参考。
墙面装饰详图
该图为墙面装饰详图,CAD2008版,供各位参考。
首页
上一页
下一页
尾页