首页
首页
建筑图纸
建筑详图、图库
建筑详图、图库
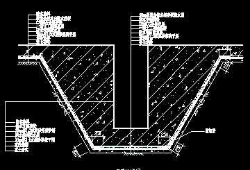
防水节点构造合集
该图为防水节点构造合集,CAD2008版,供各位参考。
佛光寺柱头科斗拱分件大样
该图为佛光寺柱头科斗拱分件大样,CAD2008版,供各位参考。
各种材质踢脚做法节点详图
该图为各种材质踢脚做法节点详图,CAD2008版,供各位参考。
某主楼节点图-6°标准通风百叶墙身剖面图
该图为某主楼节点图-6°标准通风百叶墙身剖面图,CAD2008版,供各位参考。
寺院设计平面图
寺庙设计,寺院设计,寺庙效果图设计,寺庙规划设计,古建寺庙设计,CAD2008版本,供大家参考
外墙保温详图
外墙保温隐蔽验收记录,CAD2008版本,供大家参考
某主楼节点图-84°标准通风百叶墙身剖面图
该图为某主楼节点图-84°标准通风百叶墙身剖面图,CAD2008版,供各位参考。
农村户型图纸
新农村户型(齐全的户型),大院好东西,比较齐全,CAD2008版本,供大家参考
某主楼节点图-斜交格构十字封堵节点
该图为某主楼节点图-斜交格构十字封堵节点,CAD2008版,供各位参考。
某厂区总平面规划图
厂区总平面规划图,面积大,CAD2008版本,供大家参考
某主楼节点图-斜交格构十字节点
该图为某主楼节点图-斜交格构十字节点,CAD2008版,供各位参考。
亭子图纸
包括各式现代、古典各种风格的亭子图例,CAD2008版本,供大家参考
坐槛大样图
该图为坐槛大样图,CAD2008版,供各位参考。
化工车间建筑施工图
所有墙体的洞孔应在各种管道安装完毕后用砖重新砌死封闭,防爆墙体的洞孔还应用防火材料将管道周围的缝隙紧密填塞,CAD2008版本,供大家参考
屋面栏板栏杆节点详图
该图为屋面栏板栏杆节点详图,CAD2008版,供各位参考。
小高层住宅楼建筑全套图
小高层住宅楼建筑全套图,CAD2008版本,供大家参考
异形酒店总平面定位图
收集的异形酒店总平面定位图,施工图深度,包括定位,CAD2008版本,供大家参考
某学校宿舍建筑图
某学校宿舍建筑图,包括学生和教师平面图,剖面图,CAD2008版本,供大家参考
厂区总平面图纸
厂区的总平面图,交通合理,组织有序,CAD2008版本,供大家参考
农村木房旅馆平面图
建筑风格的二层木结构农村民房兼做乡村旅游旅馆,CAD2008版本,供大家参考
首页
上一页
下一页
尾页