首页
首页
建筑图纸
建筑详图、图库
建筑详图、图库
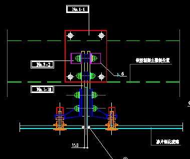
张拉吊杆节点详图
该图为张拉吊杆节点详图,CAD2008版,供各位参考。
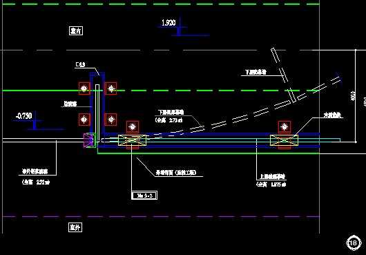
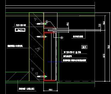
侧边支承节点详图
该图为侧边支承节点详图,CAD2008版,供各位参考。
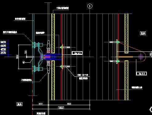
分叉墙下基座节点详图
该图为分叉墙下基座节点详图,CAD2008版,供各位参考。
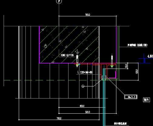
肋玻璃下锚座节点详图
该图为肋玻璃下锚座节点详图,CAD2008版,供各位参考。
连接件安装节点详图
该图为连接件安装节点详图,CAD2008版,供各位参考。
全玻璃上嵌座节点详图
该图为全玻璃上嵌座节点详图,CAD2008版,供各位参考。
全玻璃下基座节点详图
该图为全玻璃下基座节点详图,CAD2008版,供各位参考。
全玻璃下支座节点详图
该图为全玻璃下支座节点详图,CAD2008版,供各位参考。
转轴门扇节点详图
该图为转轴门扇节点详图,CAD2008版,供各位参考。
檐口埋板安装节点大样
该图为檐口埋板安装节点大样,CAD2008版,供各位参考。
电梯标准建筑详图
非常详细的日立电梯标准建筑详图,CAD2008版本,供大家参考
活动中心方案设
此为大学生活动中心全套平立剖cad图纸,内容详尽,CAD2008版本,供大家
某别墅平面方案图
本别墅地上一层,地上三层,总建筑面积三百多平米,CAD2008版本,供大家参考
别墅施工图
别墅施工图,平面、立面,CAD2008版本,供大家参考
建筑平面图窗花雕刻平面图
古建筑,平面,窗花,雕刻,CAD2008版本,供大家参考
户型图平面图
一个普通户型平面,有地板和尺寸和家具布置图,CAD2008版本,供大家参考
酒店厨房方案平面图
酒店厨房方案平面图,所有水池的给水头均加截止阀,并装水龙头,CAD2008版本,供大家参考
新苑施工图
新苑图纸包括平面,立面,CAD2008版本,供大家参考
综合办公楼平面图
综合型框架结构办公楼,包括平面,里面,剖面,CAD2008版本,供大家参考
高层建筑图纸
高层建筑图纸,梁平面图,屋平面图,配筋图扥,CAD2008版本,供大家参考
首页
上一页
下一页
尾页