首页
首页
建筑图纸
建筑详图、图库
建筑详图、图库
横式水落管防水大样
该图为横式水落管防水大样,CAD2008版,供各位参考。
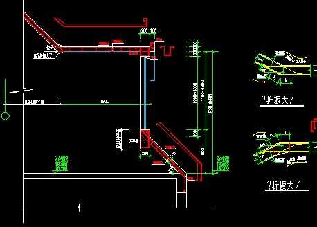
户内钢木楼梯详图
该图为户内钢木楼梯详图,CAD2008版,供各位参考。
混凝土屋面构造
该图为混凝土屋面构造,CAD2008版,供各位参考。
货梯菜梯配筋图
该图为货梯菜梯配筋图,CAD2008版,供各位参考。
架空层、屋面檐口大样
该图为架空层、屋面檐口大样,CAD2008版,供各位参考。
架空层墙柱装饰大样
该图为架空层墙柱装饰大样,CAD2008版,供各位参考。
屋面改造彩板施工图
该图为屋面改造彩板施工图,CAD2008版,供各位参考。
檐口大样
该图为檐口大样,CAD2008版,供各位参考。
混凝土旋转楼梯图
该图为混凝土旋转楼梯图,内容包括有:旋转楼梯平面图,旋转楼展开剖面图 ,CAD2008版,供各位参考。
采光顶节点图
该图为采光顶节点图,CAD2008版,供各位参考。
复合板门安装节点简图
该图为复合板门安装节点简图,CAD2008版,供各位参考。
砖墙与钢结构柱拉结节点
该图为砖墙与钢结构柱拉结节点,CAD2008版,供各位参考。
镀锌铁皮天沟大样
该图为镀锌铁皮天沟大样,CAD2008版,供各位参考。
雨篷处泛水板收边节点图
该图为雨篷处泛水板收边节点图,CAD2008版,供各位参考。
架空层屋面、檐口大样
该图为架空层屋面、檐口大样,CAD2008版,供各位参考。
简易钢楼梯做法详图
该图为简易钢楼梯做法详图,CAD2008版,供各位参考。
角柱柱头斗拱
该图为角柱柱头斗拱,CAD2008版,供各位参考。
经典的二级防水屋面详图
该图为经典的二级防水屋面详图,CAD2008版,供各位参考。
栏杆剖面大样
该图为栏杆剖面大样,CAD2008版,供各位参考。
老虎窗详图
该图为老虎窗详图,CAD2008版,供各位参考。
首页
上一页
下一页
尾页