首页
首页
建筑图纸
建筑详图、图库
建筑详图、图库
铝合金门纵剖横剖节点图
该图为铝合金门纵剖横剖节点图,CAD2008版,供各位参考。
木作造型门框大样图
该图为木作造型门框大样图,CAD2008版,供各位参考。
女儿墙及泛水大样图
该图为女儿墙及泛水大样图,CAD2008版,供各位参考。
全玻璃下基座节点详图
该图全玻璃下基座节点详图为,CAD2008版,供各位参考。
散水明沟图
该图为散水明沟图,CAD2008版,供各位参考。
上沿埋板安装节点大样
该图为上沿埋板安装节点大样,CAD2008版,供各位参考。
升降月台规范及安装详图
该图为升降月台规范及安装详图,CAD2008版,供各位参考。
直立式楼梯扶手大样图
该图为直立式楼梯扶手大样图,内容包括有:楼梯扶手剖面图,楼梯扶手立面图(直立式),CAD2008版,供各位参考。
直立式扶手大样图
该图为直立式扶手大样图,CAD2008版,供各位参考。
雨棚拉杆零件图
该图为雨棚拉杆零件图,CAD2008版,供各位参考。
雨棚安装节点图
该图为雨棚安装节点图,CAD2008版,供各位参考。
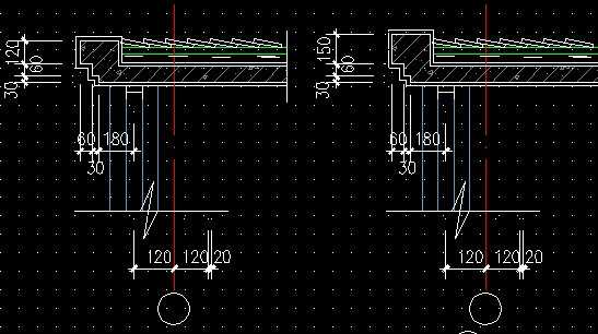
檐口剖面详图
该图为檐口剖面详图,CAD2008版,供各位参考。
檐口大样
该图为檐口大样,CAD2008版,供各位参考。
檐沟大样
该图为檐沟大样,CAD2008版,供各位参考。
屋面管道间通风口、管线出口及透气管基座大样图
该图为屋面管道间通风口、管线出口及透气管基座大样图,CAD2008版,供各位参考。
屋面出入口图
该图为屋面出入口图,CAD2008版,供各位参考。
屋面采光天窗构造大样图
该图为屋面采光天窗构造大样图,CAD2008版,供各位参考。
屋面采光天窗构造大样图
该图为屋面采光天窗构造大样图,CAD2008版,供各位参考。
屋面采光天窗构造大样图
该图为屋面采光天窗构造大样图,CAD2008版,供各位参考。
屋面采光天窗构造大样图
该图为屋面采光天窗构造大样图,CAD2008版,供各位参考。
首页
上一页
下一页
尾页