首页
首页
建筑图纸
建筑详图、图库
建筑详图、图库
屋顶设备基座大样图
该图为屋顶设备基座大样图,内容包括有:平面示意图,剖面示意图,CAD2008版,供各位参考。
屋顶冷却水塔基座大样图
该图为屋顶冷却水塔基座大样图,内容包括有:平面示意图,剖面示意图等,CAD2008版,供各位参考。
屋顶防水及隔热大样图
该图为屋顶防水及隔热大样图,CAD2008版,供各位参考。
停车场导沟及落水罩大样图
该图为停车场导沟及落水罩大样图,CAD2008版,供各位参考。
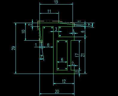
突出物及机房踏步详图
该图为突出物及机房踏步详图,CAD2008版,供各位参考。
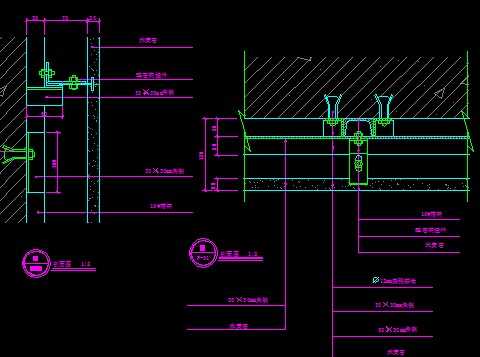
玻璃幕墙节点图
该图为玻璃幕墙节点图,CAD2008版,供各位参考。
玻璃雨棚节点图
该图为玻璃雨棚节点图,CAD2008版,供各位参考。
彩钢板节点顺坡连接、横坡连接图
该图为彩钢板节点顺坡连接、横坡连接,CAD2008版,供各位参考。
彩钢板节点檐口、屋脊图
该图为彩钢板节点檐口、屋脊,CAD2008版,供各位参考。
地沟节点图
该图为地沟节点图,CAD2008版,供各位参考。
复合铝塑板墙面节点图
该图为复合铝塑板墙面节点图,CAD2008版,供各位参考。
钢挂石材
该图为钢挂石材,内容包括有:剖面图等,CAD2008版,供各位参考。
钢丝网式栏杆立面及大样图
该图为钢丝网式栏杆立面及大样图,CAD2008版,供各位参考。
建筑节点详图
该图为建筑节点详图,CAD2008版,供各位参考。
建筑型材
该图为建筑型材,CAD2008版,供各位参考。
连廊彩板维护节点图
该图为连廊彩板维护节点图,CAD2008版,供各位参考。
楼梯平面、剖面图
该图为楼梯平面、剖面图,CAD2008版,供各位参考。
铝塑板吊顶节点图
该图为铝塑板吊顶节点图,内容包括有;裙楼南,西面一层顶板分格大样图CAD2008版,供各位参考。
门窗安装详图
该图为门窗安装详图,CAD2008版,供各位参考。
明框幕墙
该图为明框幕墙,CAD2008版,供各位参考。
首页
上一页
下一页
尾页