首页
首页
建筑图纸
建筑详图、图库
建筑详图、图库
隐框玻璃幕墙窗结构节点图
该图为隐框玻璃幕墙窗结构节点图,内容包括有:立面图,剖面图等,CAD2008版,供各位参考。
阳台详图
该图为阳台详图,CAD2008版,供各位参考。
屋面檐口详图
该图为屋面檐口详图,CAD2008版,供各位参考。
天沟女儿墙节点图
该图为天沟女儿墙节点图,CAD2008版,供各位参考。
屋面SBS保温详图
该图为屋面SBS保温详图,内容包括有:结构层,结合层等,CAD2008版,供各位参考。
屋顶钢结构铝复合板挑檐大样
该图为屋顶钢结构铝复合板挑檐大样,内容包括有:立面索引图,钢结构龙骨布置图等,CAD2008版,供各位参考。
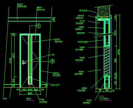
铝板幕墙与塑钢窗大样
该图为铝板幕墙与塑钢窗大样,内容包括有:立面图,剖面等,CAD2008版,供各位参考。
楼梯大样
该图为楼梯大样,CAD2008版,供各位参考。
楼梯详图
该图为楼梯详图,内容包括有:楼梯楼层平面图,楼梯电梯机房层平面图等,CAD2008版,供各位参考。
柚木夹板(带百叶)门大样
该图为柚木夹板(带百叶)门大样,CAD2008版,供各位参考。
屋面檐沟做法详图
该图为屋面檐沟做法详图,CAD2008版,供各位参考。
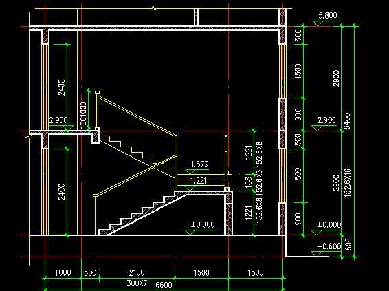
某十一层板式住宅楼梯详图
该图为某十一层板式住宅楼梯详图,内容包括有:楼层说明,平面图等,CAD2008版,供各位参考。
墙身檐沟和线脚大样图
该图为墙身檐沟和线脚大样图,CAD2008版,供各位参考。
塑钢门窗大样
该图为塑钢门窗大样,CAD2008版,供各位参考。
游泳馆建筑详图
该图为游泳馆建筑详图,内容包括有:泳道详图,溢水槽等,CAD2008版,供各位参考。
半隐框玻璃幕墙立面解剖图
该图为半隐框玻璃幕墙立面解剖图,CAD2008版,供各位参考。
豪华西式窗图集
该图为豪华西式窗图集,CAD2008版,供各位参考。
楼梯设计详图
该图为各楼梯设计详图,内容包括有:楼梯一层平面图,楼梯剖面图等,CAD2008版,供各位参考。
豪华西式窗图集
该图为豪华西式窗图集,CAD2008版,供各位参考。
868推拉窗节点图
该图为868推拉窗节点图,CAD2008版,供各位参考。
首页
上一页
下一页
尾页