首页
首页
建筑图纸
建筑详图、图库
建筑详图、图库
不锈钢栏杆扶手节点详图
该图为不锈钢栏杆扶手节点详图,内容包括有:护栏立面大样图,栏杆立面大样图,扶手与墙体连接大样等CAD2008版,供各位参考。
残疾人卫生间大样
该图为残疾人卫生间大样,内容包括有:挂式小便器府视图,座式大便器府视图等CAD2008版,供各位参考。
初入门窗幕墙设计员CAD学习模板
该图为初入门窗幕墙设计员CAD学习模板,内容包括有:局部立面,幕墙立面大样图,复合铝板幕墙窗洞百页垂直节点等CAD2008版,供各位参考。
高层建筑施工图-标准层电梯间放大平面图
该图为高层建筑施工图-标准层电梯间放大平面图,内容包括有:屋面层平面图, 复式二层平面图,标准层平面图等CAD2008版,供各位参考。
弧形楼梯节点详图
该图为弧形楼梯节点详图,CAD2008版,供各位参考。
火车站售票窗口节点详图
该图为火车站售票窗口节点详图,内容包括有:售票台侧面剖图等CAD2008版,供各位参考。
某电梯分类建筑图
该图为某电梯分类建筑图,内容包括有:井道平面图,机房平面图等CAD2008版,供各位参考。
某二十四层高档商务大厦-残疾人坡道详图
该图为某二十四层高档商务大厦-残疾人坡道详图,内容包括有:建筑施工图设计说明,地下层平面图,顶层电梯机房平面图等CAD2008版,供各位参考。
某河畔花园-幼儿园楼梯详图
该图为某河畔花园-幼儿园楼梯详图,内容包括有:总平面图,定位设计图,卫生间及楼梯详图等CAD2008版,供各位参考。
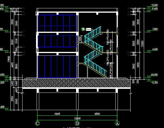
某三层沿街楼-楼梯大样图
该图为某三层沿街楼-楼梯大样图,内容包括有:楼层剖面图,楼梯甲 剖面图,楼梯乙 楼梯平面图 等CAD2008版,供各位参考。
某十八层综合大厦(带换热站)-住宅楼梯放大图
该图为某十八层综合大厦住宅楼梯放大图,内容包括有:各楼层平面图,CAD2008版,供各位参考。
某小学综合教学楼楼梯节点详图
该图为某小学综合教学楼楼梯节点详图,CAD2008版,供各位参考。
某型材图集
该图为某型材图集,内容包括有:外压式隐形幕墙结构,隐形铝合金玻璃幕墙结构等CAD2008版,供各位参考。
幕墙构件节点详图
该图为幕墙构件节点详图,内容包括有:幕墙节点详图等CAD2008版,供各位参考。
石材节点详图
该图为石材节点详图,内容包括有:幕墙节点详图等CAD2008版,供各位参考。
隐框幕墙节点详图图集
该图为隐框幕墙节点详图图集,内容包括有:隐框幕墙开启节点详图,隐框幕墙底部、顶部节点详图等CAD2008版,供各位参考。
cad餐桌立面图
该图为餐桌立面图,CAD2008版,供各位参考。
cad装饰案台立面图
该图为装饰案台立面图,CAD2008版,供各位参考。
cad桌子立面图纸
该图为桌子立面图纸,CAD2008版,供各位参考。
cad床铺立面图纸
该图为床铺立面图纸,CAD2008版,供各位参考。
首页
上一页
下一页
尾页