首页
首页
建筑图纸
建筑装修图
建筑装修图
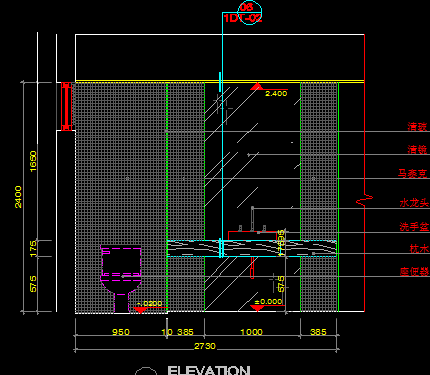
主浴室洗手台详图
主浴室洗手台详图包括主人浴室墙身大样图、主人浴室洗手台立面图、洗手台剖面图,供参考!
通信体验台详图
通信体验台详图包括HSDPA高速上网体验台大样图、视频通话、视频会议体验台大样图,供参考!
总统套房门详图
总统套房门详图包括总统套间门立面图、大样图,供参考!
主卧卫生间立面详图
主卧卫生间立面详图包括主卫立面图、主卫立面图、主卫窗台详图、主卫洗手台详图、主卫剖面图,供参考!
某样板房装修施工图
某样板房装修施工图,包括平面布置图、天花布置图、开线图、立面图等,供大家参考!
自助银行详图
自助银行详图包括自助银行正立面图、剖面图,供参考!
银行贵宾现金柜台详图
银行贵宾现金柜台详图包括贵宾现金柜台正立面图、贵宾现金柜台大样图、贵宾现金柜台背立面图、贵宾现金柜台平面图、贵宾现金柜台剖面图,供参考!
主卧衣柜详图
主卧衣柜详图包括衣柜立面图、衣柜平面图、大样图、剖面,供参考!
中式餐包立面设计图
中式餐包立面设计图,供参考!
洗浴中心装修设计图纸
洗浴中心装修设计图纸包括墙面软包大样图 、剖面图 、大样图/立面图、中式花格大样图、剖面图、平面布置图、顶棚布置图,供参考
多功能厅装修施工图
多功能厅装修施工图,包括平面布置图、立面图、剖面图、柱子大样图等,供大家参考!
陶立克柱详图
陶立克柱详图包括陶立克柱立面图 、柱座断面图、陶立克柱平面图、壁柱立面详图、工艺花岗岩蘑菇石、欧式柱干挂安装竖向断面大样图 、欧式柱干挂安装横向断面大样图,供参考!
物委办公楼电梯厅装修图纸
物委办公楼电梯厅装修图纸包括走廊电梯厅平面图、走廊电梯厅吊顶图、电梯厅立面图,供参考!
复式住宅楼装饰施工图纸
复式住宅楼装饰施工图纸,包括平面布置图、二建筑平面图 、楼梯间立面图等,供大家参考!
卫生间设计详图
小卫生间详图包括更衣室立面图、更衣室剖面图、水吧间剖面图,供参考!
现代电视墙立面图
现代电视墙立面图,供参考!
书房转角书柜详图
书房转角书柜详图包括书架平面图、大样图、剖面图,供参考!
夜总会VIP房装修设计图纸
夜总会VIP房装修设计图纸,供参考!
九层医院装修设计图纸
九层医院装修设计图纸包括天花布置图、通风口布置图,供参考!
住宅装修设计图纸
四室一厅一厨两卫住宅装修设计图纸包括原始户型图、原始尺寸图、平面设计布置图、顶面天花设计图、顶面照明电路控制图,供参考!
首页
上一页
下一页
尾页