首页
首页
建筑图纸
建筑装修图
建筑装修图
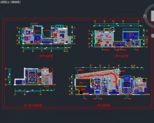
某别墅装修方案图
某别墅装修方案图:一层原始平面图、二层平面布置图、三层平面布置图、三层天花布置图、三层地面铺装布置图等等,本文为dwg格式,供大家参考!
别墅装饰施工图
别墅装饰施工图:首层平面方案布置图、首层天花布置图、二楼天花布置图、主人房床头背景图、首层休闲区卫生间展立面等等,本文为dwg格式,供大家参考!
别墅装饰设计图纸
别墅装饰设计图纸:二层平面布置图、三层平面布置图、三层天花布置图、餐厅立面图.楼梯立面图、三层平面索引图等等,本文为dwg格式,供大家参考!
乡村别墅装饰施工图纸
乡村别墅装饰施工图纸:厨房立面图、厨房平面图、主卧电视柜立面图、主卧电视柜立面图、客房衣柜结构图、主卧衣柜立面图等等,本文为dwg格式,供大家参考!
别墅装修工程施工图纸
别墅装修工程施工图纸:首层天花开线图、一层餐厅A、B立面图、一层客厅C立面、一层梯级剖面图、一层门厅A、B立面图、一层餐厅、厨房剖面图等等,本文为dwg格式,供大家参考!
豪华别墅详细装修图
豪华别墅详细装修图,本文为dwg格式,供大家参考!
高尔夫别墅装修施工图纸
高尔夫别墅装修施工图纸:型首层平面布置图、型首层天花线路及开关布置图、型首层地台物料分布图、型二层平面布置图、地下层影音室立面图等等,本文为dwg格式,供大家参考!
某别墅装饰施工图纸
某别墅装饰施工图纸:一层平面布置图、门厅玄关立面图、二楼过厅隔墙立面图、一楼客厅电视柜立面图、二楼过厅装饰墙立面图等等,本文为dwg格式,供大家参考!
精品别墅装修全套施工图纸
精品别墅装修全套施工图纸:二层原始平面图、一层原始平面图、一层平面布置图、四层平面布置图、四层插座布置图、二层冷热水布置图等等,本文为dwg格式,供大家参考!
几套现代别墅装修图
几套现代别墅装修图:首层平面图、二层平面图、三层平面图、天面平面图、顶层天面平面图、轴立面图等等,本文为dwg格式,供大家参考!
别墅区装修图
别墅区装修图:A型别墅首层平面图、A型别墅首层天花图、A型别墅首层砌筑图、A型别墅首层地面图、A型别墅二层门表索引图等等,本文为dwg格式,供大家参考!
别墅装修图(摩洛哥)
别墅装修图(摩洛哥):D型别墅地面图、D型别墅家私图、D型别墅天花图、卧室B向立面图、卫生间E向立面图、主入口立面图及大样图、衣柜立面施工图等等,本文为dwg格式,供大家参考!
别墅装修设计图
别墅装修设计图,本文为dwg格式,供大家参考!
别墅装修设计施工图
别墅装修设计施工图:首层大门立面、首层饭厅立面、首层饭厅屏风立面、首层饭厅立面、二楼过道立面等等,本文为dwg格式,供大家参考!
别墅装修图
别墅装修图,本文为dwg格式,供大家参考!
别墅室内装修设计图纸
别墅室内装修设计图,本文为dwg格式,供大家参考!
某别墅装修设计图纸
某别墅装修设计图纸:客厅A立面、次卫A立面、鞋柜立面、床头柜正立面、房门立面等等,本文为dwg格式,供大家参考!
一套豪华别墅平面装修图
一套豪华别墅平面装修图:二层平面布置、地下室平面布置、一层平面布置、三层平面布置等等,本文为dwg格式,供大家参考!
别墅装修施工图
别墅装修施工图:平面布置图、吊顶布置图、开关布置图、客厅A-07立面、厨房A-03立面图、次卧衣柜B-02 B-03结构图等等,本文为dwg格式,供大家参考!
住宅装修设计图
住宅装修设计图包括客厅立面图、电视柜平面图、主卧立面图、父母房立面图、家具平面布置图、天花布置图
首页
上一页
下一页
尾页