首页
首页
暖通工程
暖通图纸
暖通图纸
某热电厂采暖工程施工图
包括主厂房采暖施工图,主厂房煤仓间通风除尘,主厂房通风施工图,生产办公楼暖通施工图,餐厅暖通施工图,浴室暖通施工图,大门采暖施工图,化水车间暖通施工图等等
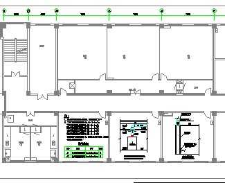
某学校暖通空调工程施工图
某学校暖通空调工程施工图,包括暖通设计总说明,通风、防排烟系统主要设备表,通风、防排烟系统原理图,空调末端控制原理图
某大学会堂暖通空调工程施工图
在会堂大厅池座与舞台区域设置一套夏、冬冷热双供一次回风普通集中空调系统。该系统采用具有空气热湿与净化处理等功能的组合式空调机组
某办公楼暖通工程施工图
包括设备表,设计施工总说明,空调冷热源系统原理图,二层P2实验室净化空调系统JK-2-1~2原理图,地下层CO2汇流排流程图及平面图
某生产厂房及办公楼通风空调设计图
包括图纸目录设备材料表,设计及施工说明,一层管道布置平面图,一层通风平面图,二层通风平面图,屋面通风平面图,一层空调平面图,二层空调平面图,屋面空调平面图等等
某地铁站采暖空调工程设计图
某地铁站采暖空调工程设计图,包括设计说明,主要设备材料表,锅炉房热力系统图,防灾系统图,采暖通风空调布置图等
某肉类食品冷库制冷系统设计图
某肉类食品冷库制冷系统设计图,包括设备明细表,设计说明,冷藏库氨制冷流程图,冷藏库建筑平面图,围护结构构造图,机房设备基础平剖图,机房设备管道详图
办公楼空调工程设计图纸
办公楼空调工程设计图纸包括地下层空调配管平面图、二层空调配管平面图、详图、正压送风系统图等
某居住区办公楼空调通风工程施工图
本项目为XX某居住区核心区配套工程,总建筑面积为42512.3平方米。办公楼共14层,办公建筑面积:10811平方米,根据建筑物性质
某超高层商务楼暖通空调系统施工图
某超高层商务楼暖通空调系统施工图,包括1-3层空调图,4-7层空调图,B1空调图纸,B2B3空调图,说明,制冷机房冷冻水冷却水系统流程图,办公楼24小时冷却水系统流程图
全球碳循环 周广胜
《全球碳循环》为了宣传和普及气候和气候变化方面的科学知识,提高公众在全球变化问题上的科学认识,我们组织编撰出版这套《全球变化热门话题》丛书。
某中心办公楼暖通空调工程施工图
某中心办公楼暖通空调工程施工图,包括图例,地下一层通风、防排烟平面图,地下一层空调风平面图,地下一层空调水管平面图,地下一层采暖平面图
某超高层商务办公楼暖通空调施工图
酒店、办公楼及公寓式办公中央空调系统设计;机械通风系统设计;防排烟系统设计;厨房排油烟系统设计;蒸汽锅炉汽水系统设计
某高层大厦暖通施工设计图
某高层大厦暖通施工设计图,包括设计施工说明,一层平面,二层平面,三层平面,标准层平面,二十六、二十七层平面,80.250标高平面,火灾防排烟系统图
某超高层商业办公楼暖通消防工程施工图
某超高层商业办公楼暖通消防工程施工图,包括暖通设计说明,地下四层通风平面图,地下四层人防通风平面图,人防单元进风口部大样,人防单元排风口部大样
某商业办公楼空调通风工程施工图
某商业办公楼空调通风工程施工图,包括设计施工说明,空调通风图例,主要设备材料性能表,地下三层通风消防平面,地下二层通风消防平面
某五星级酒店暖通防排烟系统施工图
某五星级酒暖通防排烟系统施工图,包括空调、通风工程安装通用说明,防排烟系统设计施工总说明,空调通风节能设计说明,地下一层通风及防排烟平面图
某大型商业办公楼暖通工程施工图
某大型商业办公楼暖通工程施工图,包括暖通设计、施工说明,主要暖通设备表,空调、通风及防排烟系统表,地下一层空调系统热水机房,水泵房平
住宅楼采暖工程施工图纸
住宅楼采暖工程施工图纸包括采暖平面图、地下室通风与采暖管道平面图、屋顶层通风平面图等
某医院空调系统施工图纸
某医院空调系统施工图纸包括空调平面图、屋顶防排烟平面图、新风平面图等
首页
上一页
下一页
尾页