首页
首页
施工组织
施工组织
安全防护方案
成立以项目经理为组长,项目副经理、项目总工及安全负责人为副组长,安全员、机电管理员、各工长及班组长为成员的安全防护管理小组,定期研究解决安全防护、安全技术、安全防护检查和安全防护措施。 2011-01-12
2006年度安全生产责任书
为认真贯彻“安全第一、预防为主”的方针,做到施工安全管理工作的标准化与规范化,确保建设工程项目安全、优质、按期完成,同时为进一步明确有关各方的安全职责,进一步提高公司建设工程施工安全管理的整体水平,杜绝重大伤亡事故的发生,保障人身安全、保障公司信誉。 2011-01-12
监理对某地铁废水泵房暗挖施工安全交底
暗挖工程属于重大危险源,要求实行严格的安全监控制度,该工点必须配置一名专职安全员,将安全员和现场负责人名单和联系电话报我监理部和现场监理;进出隧道人员实行进出场登记制度,现场制作进出隧道人员登记牌,要求有专人负责 2011-01-12
施工施工安全简明手册
在建筑工程中,通常把施工分为施工准备、土建施工、设备安装和装饰等几个阶段而施工准备阶段的安全技术总体规划,关系到能否保证整个施工工程安全进行的环节,安全措施的准备更是起着举足轻重的作用。 2011-01-12
建筑高空坠落、坍塌、倾覆、物体打击、机械伤害、触电等事故应急预案
为了保护本企业从业人员在经营活动中的身体健康和生命安全,保证本企业在出现生产安全事故时,能够及时进行应急救援,从而最大限度地降低生产安全事故给本企业及本企业员工所造成的损失特制订本预案。 2011-01-12
机械设备安全知识
机械传动分为齿轮传动、链传动和带传动。由于部件不符合要求,如机械设计不合理,传动部分和突出的转动部分外露、无防护等,可能把手、衣服绞入其中造成伤害。 2011-01-12
现场安全文明施工方案
现场文明施工是每个施工企业的追求,同时也是建筑业和社会的需要。 2011-01-12
安全技术交底范本
为了规范施工从业人员在施工过程中的操作行为,消除不安全因素,控制工伤事故的发生,公司依据国家法律、法规和行业规范标准要求,结合公司施工生产过程中的实际情况,将施工过程中八十个作业活动的安全技术交底内容编制成范本印发给你们,望各单位编制安全技术交底人员认真学习和参阅,把安全技术交底的有效性、针对性真正落到实处,确保施工过程中各项安全管理工作得到有序的控制。 2011-01-12
建筑施工人员入场安全生产教育培训考试试卷
建筑施工人员入场安全生产教育培训考试试卷,仅供参考! 2011-01-12
安全文明施工手册
为了进一步规范我公司施工现场安全和文明施工管理,根据国家相关工程建设安全文明施工管理规范的要求,特编写本管理制度。 2011-01-12
危险源辨识风险评价清单
危险源辨识风险评价清单,仅供参考! 2011-01-12
建筑施工安全检查标准讲义
提高建筑施工安全生产工作和文明施工的管理水平,预防和减少生产安全事故的发生,确保职工生命和财产的安全。 2011-01-12
安全技术交底
建筑施工安全生产技术交底,建筑设备、机械施工安全生产技术交底装饰施工安全生产技术交底,建筑安装施工用电安全生产技术交底悬空施工安全生产技术交底,建筑管理安全技术交底. 2011-01-12
大跨悬索桥的设计与施工
介绍猫道安装工艺流程及关键安装工序:导索过江、托架支承索架设及承重绳架设。
木龙骨石膏板吊顶施工工艺
平川放搭装或对称搁置式安装,先将吊顶骨架安装就位,其T 型龙骨的中距依吊顶板块的规格尺寸而定(选用市售成品或根据须要与出产厂协商确定板材规格),吊牢、吊平。 2011-01-11
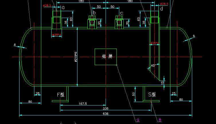
压力储液罐
这是一个化工卧式压力储罐的总装图,比较详细,可以施工
装饰装修工程表格
装饰装修工程表格,仅供参考! 2011-01-09
建筑企业管理
本书以建筑企业为研究对象, 在概述企业制度、组织管理和企业文化的基础上, 对于企业的经营活动以市场化的观点、企业内部的生产活动以项目管理的观点, 系统介绍了建筑企业生产经营管理理论和方法。最后, 阐述了建筑企业信息化的有关内容。
地下室工程
地下室工程,仅供参考! 2011-01-08
建筑施工现场安全防护设施技术规程
建筑施工现场安全防护设施技术规程,仅供参考! 2011-01-07
首页
上一页
下一页
尾页