首页
分享
首页
小品及配套设施
内容
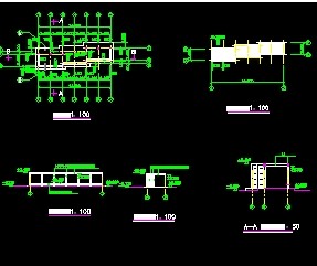
三段式花架设计详图
资料大小
:143 KB
运行环境
:NT/2000/XP/2003/Vista
资料语言
:简体中文
资料评级
:
授权形式
:资料共享
更新时间
:2014-02-16 11:44
发布作者
:挨踢炮灰帝
插件情况
:
无插件,请放心使用
文件类型
:
RAR
解压密码
:gc5.com
安全检测
:
瑞星
江民
卡巴斯基
金山
介绍: 三段式花架设计详图包括平面图、立面图、剖面图等。供大家参考!
查看全文
点击进入下载
(需要
0
积分)
相关文章
弧形花架设计详图
20130222
弧形花架设计详图
20170113
花架设计详图
20140423
花架设计详图
20130903
花架设计详图
20131109
回到顶部
请复制以下网址分享
三段式花架设计详图
https://m.gc5.com/ylgc/yltz/yljg/10615235.html