首页

  1. 首页
  2. 小品及配套设施
  3. 内容

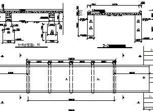
漫水桥施工详图

  • 资料大小:130 KB
  • 运行环境:NT/2000/XP/2003/Vista
  • 资料语言:简体中文
  • 资料评级
  • 授权形式:资料共享
  • 更新时间:2015-01-20 21:06
  • 发布作者:小吒吒
  • 插件情况 无插件,请放心使用
  • 文件类型 RAR
  • 解压密码:gc5.com
  • 安全检测 瑞星 江民 卡巴斯基 金山
漫水桥施工详图
介绍: 说明:1.砼帽墩混凝土标号为C25; 2.浆砌石砌筑砂浆M7.5,混凝土采用C20;3.坝体排水管间距8米,采用1.5寸PVC管;4.回填砂砾石水撼;5.桥板保护层厚度为20;6.砼板接缝处采用4层油毡纸接缝。
点击进入下载 (需要 0 积分)

相关文章

回到顶部
请复制以下网址分享
漫水桥施工详图
https://m.gc5.com/ylgc/yltz/yljg/10750359.html