首页
首页
园林图纸
小品及配套设施
小品及配套设施
曲桥施工图纸
曲桥施工图纸包括曲桥平面图、曲桥剖立面图、曲桥横剖立面图、曲桥配筋平面图、曲桥梁平面图等。
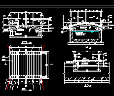
三孔拱桥施工图纸
三孔拱桥施工图纸包括三孔拱桥立面图、三孔拱桥平面图、三孔拱桥基础平面图、抱鼓石大样图、三孔拱桥纵剖面图、砼拱圈配筋图等。
亭桥、花架廊设计图纸
亭桥、花架廊设计图纸包括亭基础平面图、亭顶结构平面布置图、花架廊平面图、园路剖面图、双亭亭顶平面图、双亭立面图、组合亭地面色彩分隔图、单亭亭顶平面图、桥面配筋图、桥基础平面图等。
石拱桥设计图纸
石拱桥设计图纸包括石拱桥立剖面图、石拱桥平面图、砼座基配筋图、石拱桥基础平面图、砼座基配筋图等。
石拱桥整体施工图纸
石拱桥整体施工图纸包括平面图,供参考!
水渠与步行桥设计图纸
水渠与步行桥设计图纸包括水渠分段剖面图、水渠总平面图、水渠木桥段剖面图、木桥平面图、木桥横剖面、栏杆大样图、堰塘滤水箅子结构、大样图、拱桥平面、横剖面图、堰塘栏杆柱子结构图等。
木平台施工图纸
木平台施工图纸包括木平台(一)结构平面图、节点大样图、木平台(四)平面图、剖面图、A树池平面图、1-1树池剖面图、梁配筋断面图等。
溪桥设计图纸
溪桥设计图纸包括桥二平面图、A-A剖面图、预埋件图,供参考!
小拱桥施工图纸
小拱桥施工图纸包括平面图,供参考!
小木桥设计图纸
小木桥设计图纸包括桥剖面图、毛石挡土墙截面图,供参考!
小桥施工图纸
小桥施工图纸包括桥立面图、桥平面图、剖面图等。
石桥施工图纸
石桥施工图纸包括石桥断面图、石桥侧立面图、1-1详图、石刻花纹详图、石桥平面图、石桥透视示意图等。
一套完整的园林拱桥施工图纸
一套完整的园林拱桥施工图纸包括拱桥平面图、拱桥立剖面图、桥面做法等。
园林木桥施工图纸
园林木桥施工图纸包括木桥平面图、木桥正立面图、木梁立面图、剖面图等。
园林桥施工图纸
园林桥施工图纸包括桥立面图、桥平面图、剖面图等。
园林景观桥设计图纸
园林景观桥设计图纸包括平面图、剖面图、立面图等,供参考!
小拱桥施工图纸
小拱桥施工图纸包括小拱桥平面图、1-1剖面图、桥板配筋图、柱大样图、栏杆一大样图、小拱桥立面图等。
园林景观桥设计图纸
园林景观桥设计图纸包括桥(二)立面图、桥(二)剖面图、桥(二)平面图等。
景观桥施工图纸
景观桥施工图纸包括景观桥建筑施工图纸包括景桥平面大样图、栏板侧立面大样图、景桥正立面大样图、望柱正立、剖面大样图、栏板正立面大样图、地伏石平面大样图、地伏石正立面大样图等。
水中凉亭施工图纸
水中凉亭施工图纸包括平面图、立面图、剖面图、大样图等,供大家参考!
首页
上一页
下一页
尾页