首页
首页
园林图纸
小品及配套设施
小品及配套设施
休闲广场施工图纸
休闲广场施工图纸包括休闲广场平面图、休闲广场立面图、铺地J详图等。
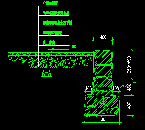
水景墙剖面图
水景墙剖面图,供参考!
表演台围墙施工详图
表演台围墙施工详图包括围墙(一)展开立面图、表演台及背景墙平面图、背景墙1-1剖面图、休闲石大样图、背景墙展开立面图等。
大门、围墙节点图
大门、围墙节点图包括围墙大样图、钢棚侧立面图、钢管基础大样图、大门正立面图、钢棚正立面图、护坡大样图、供排水沟大样图等。
挡墙及道路设计图纸
挡墙及道路设计图纸,供参考!
挡墙施工立面图
挡墙施工立面图包括立面图等,供参考!
挡土矮墙设计图纸
挡土矮墙设计图纸,供参考!
挡土墙设计图纸
挡土墙设计图纸,供参考!
道路挡墙施工图集
道路挡墙施工图集包括石板、水泥板路平面图、花砖小料石路平面图、碎石板路面图、碎石板与水泥板(石板)组合路面图、毛石砌挡土墙剖面详图、砌块砖铺装样式、料石路面构造图、现场浇筑U形边沟等。
灯饰及挡土墙设计图纸
灯饰及挡土墙设计图纸,供参考!
跌水景墙施工详图
跌水景墙施工详图包括景墙花池侧壁立面图、中心环境平面图、落水墙正立面图、花池剖面详图、座椅花池剖面详图、瀑布落水墙配筋图、瀑布落水墙剖面大样图等。
古典墙门窗样式详图
古典墙门窗样式详图包括方格木门、门式样图、花鸟乐窗、窗式样图、墙式样图等。
花墙设计图纸
花墙设计图纸包括花墙立面图、花墙剖面图等。
景观墙施工图纸
景观墙施工图纸包括景墙一平面图、景墙一基础平面图、A-A剖面示板配筋示地梁配筋图、L-L配筋图、地梁配筋图、景墙一结构示意图、1-1剖立面图等。
景观水景围墙施工图纸
景观水景围墙施工图纸包括水墙及门卫房展开立面图、A-A剖面图、种植池与水墙相接做法、流水缝做法、落水池做法、入口正立面示意图等。
景观水墙大样图
景观水墙大样图包括平面图、立面图、顶平面图、景观喷水柱平面详图、1-1剖面图等。
景墙设计图纸
景墙设计图纸包括景墙平面网格定位图、景墙A(朱红)立面图、1-1剖面图、景墙G(朱红)立面图、景墙平面大样图等。
景墙及地面铺装大样图
景墙及地面铺装大样图包括景墙平面图、景墙立面图、休逸光场平面图、剖面图等。
景墙喷泉施工详图
景墙喷泉施工详图包括景墙水池平面图、景墙水池1-1剖面图、控制井剖面图、景墙立面展开图、景墙平面图等。
景墙设计图纸
景墙设计图纸包括围墙立面图、窗花放样图、剖面图等。
首页
上一页
下一页
尾页