首页
首页
园林图纸
小品及配套设施
小品及配套设施
旱池旱喷设计图
旱池旱喷设计图,旱喷泉水池平面图、剖面、听水广场平面图、旱喷广场平面图等,供参考!
溪流水池设计图纸
溪流水池设计图纸,广场次入口剖面图、广场地面曲水流觞放样图、小溪叠水平面图、剖面等,供参考!
花架施工大样图
花架施工大样图,包括座凳大样图、花架平面、花架基础平面、花架结构平面花架立剖面等,供参考!
弧形花架施工图纸
弧形花架施工图纸,包括花架平、立面图、顶平面弧形花架、剖面、详图等,供参考!
花架式门道施工大样图
花架式门道施工大样图,包括标准门道B平面布置图、标准门道B正立面图、节点详图等,供参考!
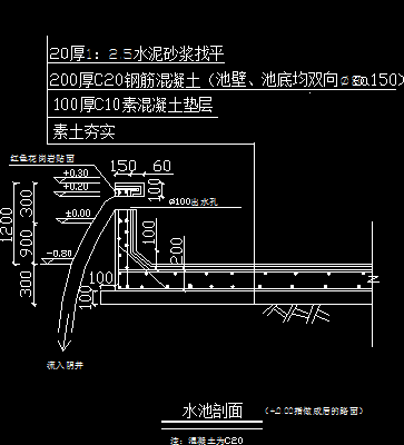
水池设计图纸
水池设计图纸,供大家参考!
六角亭设计图纸
六角亭设计图纸,包括平面图、立面图、水池剖面、平面底板结构等,等,供参考!
六角亭施工图纸
六角亭施工图纸,供大家参考!
水池花架施工图纸
水池花架施工图纸,包括花架基础平面图、花架顶面图等,供参考!
折线花架施工图
折线花架施工图,花架及铺地总平面、花架顶平面、花架侧立面、花架正立面等,供参考!
折形花架施工图
折形花架施工图,平、立面、节点详图、构平面、剖面、节点详图、基础、节点详图等,供参考!
直花架施工图纸
直花架施工图纸,花架正立面、花架底平面、花架基础平面、花架顶平面等,供参考!
亭桥花架廊施工详图
亭桥花架廊施工详图,包括亭基础平面图、亭顶结构平面布置图、亭顶屋面配筋图、花架廊平面图、花架廊顶板平面图、桥面配筋图等,供参考!
水幕瀑布设计图纸
水幕瀑布设计图纸,包括水景区小瀑布平面图、向立面图、行道树坑剖面图、行道树坑平面图、集水池剖面图等,供参考!
波形悬索廊施工图
波形悬索廊施工图,包括波形悬索廊地面平面图、波形悬索廊平面、剖面图、楼梯立面、波形悬索廊二层看台平面等,供参考!
玻璃廊大样详图
玻璃廊大样详图,包括玻璃廊平面图,玻璃廊展开立面图,玻璃廊俯视图等,供参考!
单臂花架施工图
单臂花架施工图,包括单臂花架侧立面展开图、单臂花架俯视平面图、单臂花架基础平面图、剖面图、木梁与托木连接详图、单臂花架正立面图等,供参考!
仿竹圆形花架设计图
仿竹圆形花架设计图,包括柱墩立面图、柱墩平面图、花架地台、座凳平面图、花架立面图、花架顶部平面图等 ,供参考!
河畔连廊施工大样图
河畔连廊施工大样图,包括木横梁节点、剖面图、基础节点图、正立面图等,供参考!
园路施工图纸
园路施工图纸,包括剖面图、卵石散水做法、卵石地面与草地相交处做法、入户台阶平面图等,供参考!
首页
上一页
下一页
尾页