首页
首页
园林图纸
小品及配套设施
小品及配套设施
标准台阶详图
标准台阶详图,包括剖面圖、詳圖等,供参考!
标准游泳池梯子详图
标准游泳池梯子详图,剖面圖、立面圖等,供参考!
标准周围栅栏详图
标准周围栅栏详图,平面图,立面图,剖面图,详图等,供参考!
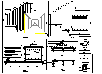
滨水平台及观景亭施工图
滨水平台及观景亭施工图,包括平面图、立面图等,供参考!
补水井、亲水平台大样图
补水井、亲水平台大样图,补水井平面、补水井立面、休憩小广场平面、亲水平台平面、亲水木平台剖面等,供参考!
大门、岗亭设计图
大门、岗亭设计图,包括大门平面、立面及门柱大样、剖面图、岗亭立面等,供参考!
大门入口设计图纸
大门入口设计图纸,大门及保安亭立面图、大门及保安亭平面图、保安亭立面图、剖面详图等,供参考!
跌水景观柱施工图
跌水景观柱施工图,剖面图、平面图、剖面图、立面图等,供参考!
儿童活动场地铺装大样
儿童活动场地铺装大样,包括儿童活动场地铺装大样、水池立面图、攀爬架立面图、攀爬架平面图等,供参考!
方形树池施工图
方形树池施工图,包括树池坐凳平面图、树池坐凳立面图、剖面图等,供参考!
方圆花池及台阶施工图
方圆花池及台阶施工图,包括透视图、平面、立面等,供参考!
水边木平台做法图
水边木平台做法图,包括水边木平台做法,沥青路面及侧石做法,踏步大样图,花岗岩地坪做法等,供参考!
广场水景小品竖琴施工图
广场水景小品竖琴施工图,供大家参考!
弧形景架设计图
弧形景架设计图包括景架平面图、钢柱基础平面图、剖面图、座凳详图等,供参考!
花钵景墙施工图
花钵景墙施工图,包括景墙平面图、景墙立面图、柱基础图、墙基础图等,供参考!
花池及座凳施工图纸
花池及座凳施工图纸,包括条形座凳平面条形座凳立面、弧形座凳平面、弧形座凳立面、圆形花池平面等,供参考!
花架景墙施工图
花架景墙施工图,包括平面图、立面图、剖面图等,供参考!
花架景墙施工图
花架景墙施工图,包括木柱基础平面图、立面图、平面图、侧立面图等,供参考!
花盆施工图
花盆施工图,包括住户入口大门平面图,住户入口大门立面图等,供参考!
花坛施工图纸
花坛施工图纸,包括入口花坛绿化配置图、入口花坛侧立面图、入口花坛正立面图、花盘平面示意等,供参考!
首页
上一页
下一页
尾页