首页
首页
园林图纸
小品及配套设施
小品及配套设施
直花架施工图纸
直花架施工图纸,花架正立面、花架基础平面、花架底平面、花架断面等,供参考!
景观栏杆设计图
栏杆在园林中主要起着分隔和导向的作用,好的护栏具有美化环境的重要作用。栏杆虽然不是景观设计中的主要构成,但是量大、范围广,对整体的园林景观有着不可忽视的影响。
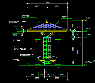
木景亭设计图纸
木景亭设计图纸,木景亭立面图、亭屋顶平面图、平面图地梁配筋图、屋顶铺板大样图、柱基配筋图等,供大家参考!
景观亭设计图纸
景观亭设计图纸,立面图、剖面图、平面图供大家参考!
某景观亭设计图纸
某景观亭设计图纸,包括立面图、平面图、剖面图等,供参考!
休闲亭设计图纸
休闲亭设计图纸,休闲亭立面图、剖面图、亭顶平面图等,供参考!
双亭设计图纸
双亭设计图纸,双亭正剖面图、柱子配筋详图、双亭基础平面布置图、双亭立面图、双亭铺装大样剖面图、详见地面铺装构造大样图等,供参考!
某景观亭设计图纸
某景观亭设计图纸,立面图,平面图供大家参考!
六角亭建筑设计图纸
六角亭建筑设计图纸,轴立面屋顶平面图、底层平面图、轴立面剖面、青石拼图、大样挂落大样、屋面梁平面布置图等供参考!
木景亭设计图纸
木景亭设计图纸,构架亭立面图、构架亭剖面图、亭平面图、构架亭屋顶平面图、木景亭屋顶平面图、柱基配筋图等,供参考!
某景观亭施工图纸
某景观亭施工图纸,亭子A立面图,剖面图,亭子平面图,屋顶平面图等,供参考!
玻璃亭设计图纸
玻璃亭设计图纸,包括立面图、草坡界石平面、剖面、底面图、石桌 石凳立面、顶平面图、地面铺装平面、玻璃顶详图等,供参考!
景观亭设计图纸
景观亭设计图纸,立面图、平面布置图、剖面图等,供参考!
婚庆亭设计图纸
婚庆亭设计图纸,婚庆亭立面图、婚庆亭顶棚平面图、基础做法详专业图、纸婚庆亭地铺图、交接处轴测图等,供参考!
四角亭设计图纸
四角亭设计图纸,包括门房立面、平面入口、窗台面和立柱详细、平面、房屋顶节点详图、屋顶平面等,供参考!
某景观同心亭设计图纸
某景观同心亭设计图纸,同心亭立面图、同心亭铺装平面图、剖面图、同心亭顶大样图、基础平面图等,供参考!
走道设计装修图
走道设计装修图,包括详图、立面图、平面屋顶图供大家参考!
小区景观木亭设计图纸
小区景观木亭设计图纸,包括亭立面图、亭屋顶平面图、剖面图、亭剖面图、剖面图等,供参考!
方亭施工图纸
方亭施工图纸,方亭正立面图、方亭侧立面图、方亭平面图 、方亭屋顶平面图等,供参考!
四方亭施工图纸
四方亭施工图纸,立面图、剖面图、平面布置图、立面图等供大家参考!
首页
上一页
下一页
尾页