首页
首页
园林图纸
小品及配套设施
小品及配套设施
八角亭设计图
八角亭设计图包括八角亭柱定位图、立面图、剖面图、平面图等
方亭设计图
方亭设计图,供大家参考
游园小品建筑施工图
游园小品建筑施工图,供参考!
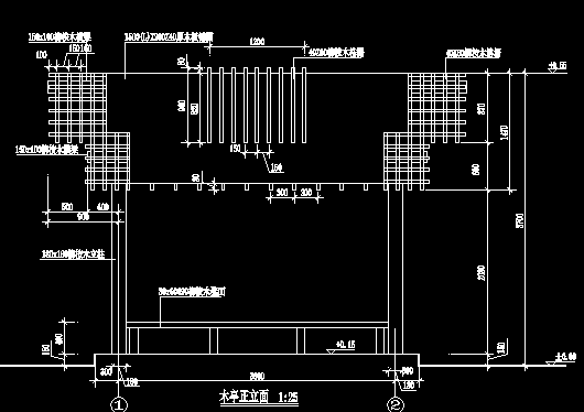
木亭设计图
木亭设计图包括平面图、剖面图、立面图等,供大家参考
花架亭设计图
花架亭设计图包括屋架大样、 花架亭柱平面图、立面图等
休闲亭设计图
休闲亭设计图包括挂落大样图、宝顶大样、立面图、平面图、剖面图等
情侣亭设计图
情侣亭设计图包括亭底平面拼花详图、平面图、立面图、剖面图
重檐亭设计图
重檐亭设计图包括平面图、剖面图、石座凳平面详图等,供大家参考
连廊设计图
连廊设计图廊局部展开立面、轴线布置图、屋架仰视图、剖面图、立面图等
花架设计图纸
花架设计图纸包括花架立面大样、花架侧立面大样、花架平面图等
半圆形花架设计图
半圆形花架设计图包括半圆形花架-平面图、立面图、剖面图等
弧形花架设计图
弧形花架设计图包括花架平面图、花架柱基础立面图等,供大家参考
弧形花架设计图
弧形花架设计图包括花架坐凳平面图、侧立面图等
弧形花架设计图
弧形花架设计图包括花架坐凳平面图、侧立面图等
弧形花架设计图
弧形花架设计图包括局部花架-平面图、 花架展开图-正立面图、剖面图等
弧形花架设计图
弧形花架设计图(四)包括花架顶面图、柱基平面图、花架立面展开图、花架侧立面图等
廊架设计图
廊架设计图包括曲廊天面平面图、曲廊侧立面图、曲廊平面图、曲廊基础平面图等
花架及特色亭大样图
花架及特色亭大样图包括平面图、立面图、剖面图、大样图等,供大家参考
景观柱设计图集
景观柱设计图集,供大家参考
各式亭子施工图集
各式亭子施工图集包括平面图、剖面图、结构图等,供大家参考
首页
上一页
下一页
尾页