首页
首页
园林图纸
小品及配套设施
小品及配套设施
仿木栏杆设计图纸
仿木栏杆设计图纸包括平面布置图、仿木栏杆立面图、栏杆大样图、望柱安装节点图
汀步花池大样图
这是一个小区的汀步,花池大样图,供大家参考!
六角亭建筑设计图
六角亭建筑设计图包括平面图、立面图、剖面图等。供大家参考!
广场环境设计图
广场环境设计图包括商业城入口广场平面、商业城入口广场铺装平面、广场铺装基层做法等
游园种植平面图
游园种植平面图,供大家参考!
休闲小广场节点详图
休闲小广场节点详图包括A区特色平台平面图、A区特色平台正立面图、A区特色平台构架平面图、A区特色平台亭铺装平面图、A区特色平台亭顶平面图等
木栈道做法详图
木栈道做法详图包括台阶剖1-1立面、木平台1-1剖面、排水槽轴侧图、木平台2-2剖面等
亭子设计图
亭子设计图包括平面图、立面图、剖面图等。供大家参考!
喷水景观墙施工做法详图
喷水景观墙施工做法详图包括喷水景墙平面图、喷水景墙立面图、喷水景墙剖面图、喷水景墙剖面图
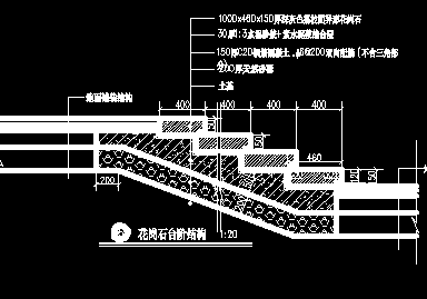
花岗石台阶结构设计详图
花岗石台阶结构设计详图,供大家参考!
重檐六角亭全套施工图
5*5双层六角重檐仿古亭,为砼结构。
喷泉设计图
喷泉设计图,包括喷泉平面图、喷泉立面图、喷泉管线平面图,供大家参考!
镜面水景做法详图
镜面水景做法详图,供大家参考!
烧烤台做法详图
烧烤台做法详图,供大家参考!
烧烤台花架设计图
烧烤台花架设计图包括平面图、立面图、剖面图等。供大家参考!
喷泉施工详图
喷泉施工详图包括平面图、立面图等。供大家参考!
某广场景观设计图
某广场景观设计图包括广场平面图、广场平面定位图、广场竖向设计
园林旱喷施工图
园林旱喷施工图包括水景A-2循环系统平面图、水景A-1循环系统平面图、水景A-1循环系统剖面图
喷水文化墙大样设计图
喷水文化墙大样设计图包括文化墙平面图、文化墙正立面图、浮雕大样、雕花泉眼大样
亭子,花架,水池施工图
亭子,花架,水池施工图包括平面布置图、走廊构架、亭屋面平面图、亭平面图等
首页
上一页
下一页
尾页