首页
首页
园林图纸
小品及配套设施
小品及配套设施
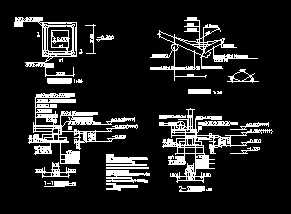
某仿竹亭设计施工图
某仿竹亭设计施工图,包括立面图等,供各位参考
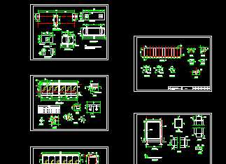
某售卖亭施工大样详图
某售卖亭施工大样详图,包括平面图,立面图,剖面图等,供各位参考
某风雨廊道设计施工图
某风雨廊道设计施工图,包括平面图,立面图,剖面图等,供各位参考
某中国式凉亭施工详图
某中国式凉亭施工详图,包括平面图,立面图,剖面图等,供各位参考
某钢结构通廊设计施工图
某钢结构通廊设计施工图,危险性分类:丁类。防火等级为:二级。抗震设防烈度为八度。本设计按抗震设防烈度8度设计;本工程设计使用年限为50年,供各位参考
某钢结构通廊建筑设计图
某钢结构通廊建筑设计图,包括平面图,立面图,剖面图等,供各位参考
某钢筋混凝土花架设计图
某钢筋混凝土花架设计图,钢筋混凝土花架预制柱基础用C20混凝土,垫层用C10混凝土。钢筋混凝土花架预制柱与基础杯口之间用C25细石混凝土填实,供各位参考
某入口广场廊亭施工图
某入口广场廊亭施工图,包括平面图,立面图,剖面图等,供各位参考
某公交车亭设计施工图
某公交车亭设计施工图,包括平面图,立面图,剖面图等,供各位参考
某古建六角亭设计施工图
某古建六角亭设计施工图,包括平面图,立面图,剖面图等,供各位参考
某古建双亭建筑施工图
某古建双亭建筑施工图,基础埋深根据现场情况另定.基地整体稳定由施工单位负责.以确保基地整体及边坡的局部稳定。供各位参考
某古建四角亭设计施工图
1.本建筑设计中,由于无地质资料,设地基承载力为50kpa。2块石垫层必须位于粘土层上,如挖至此标高时土质与设计不符,必须请设计人员现场处理。
某古建四角亭施工详图
某古建四角亭施工详图,包括平面图,立面图,剖面图等,供各位参考
某方亭设计施工图
某方亭设计施工图,说明:1、基础现场情况挖至老土下30cm为准。2、无特殊说明砼均为C20。供各位参考
某方亭设计施工图
某方亭设计施工图,包括平面图,立面图,剖面图等,供各位参考
某古建亭廊设计施工图
某古建亭廊设计施工图,包括平面图,立面图,剖面图等,供各位参考
某古建亭子设计施工图
某古建亭子设计施工图,包括平面图,立面图,剖面图等,供各位参考
某古建长廊建筑施工图
某古建长廊建筑施工图,包括平面图,立面图,剖面图等,供各位参考
某古建筑圆亭设计施工图
某古建筑圆亭设计施工图,包括平面图,立面图,剖面图等,供各位参考
某古亭建筑设计图
某古亭建筑设计图,包括平面图,立面图,剖面图等,供各位参考
首页
上一页
下一页
尾页