首页
首页
园林图纸
小品及配套设施
小品及配套设施
某景观亭设计施工图
某景观亭设计施工图,包括伞亭基础剖面图,伞亭基础平面图,伞亭正立面图,伞亭剖面图等,供各位参考
某景观亭设计施工图
某景观亭设计施工图,包括扇亭立面,1-1扇亭剖面,窗洞大样,扇亭平面,扇亭屋架,扇亭屋面等,供各位参考
某欧式亭设计施工图
2.设计图中的钢筋;表示I级钢,ƒ表示II级钢.3.受力钢筋的混凝土净保护层,除图中注明者外,一般室内正常环境下,对于梁柱为25,基础及基础粱有垫层时为35,无垫层时70.
某六角亭设计施工图
本工程为XX老年活动中心工程六角亭。本工程室内±0.00相当于绝对标高由施工现场确定,图中所注尺寸除标高以米计外,其余尺寸以毫米为单位。供各位参考
某八角重檐亭设计施工图
某八角重檐亭设计施工图,包括十六柱八角重檐亭立面图,剖面图,十六柱八角重檐亭平面图,下沿屋架平面图,上沿屋架平面图等,供各位参考
某售票亭建筑施工图
1、本工程为胥口水利枢纽上游售票亭,±0.00相当于吴淞5.95.2、本工程图纸高程以米计,余以毫米计。3、墙体:采用M5水泥砂浆砌筑机制八五砖。供各位参考
某古式六角亭正立面图
某古式六角亭正立面图,供各位参考
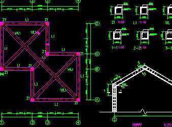
双层六角亭设计施工图
1.本工程施工时须严格遵循国家颁布的各项建筑安装工程施工验收技术规范及国家有关规定办理。2.本工程施工期间如有需要修改时,须经建设、施工、设计三方合同处理。
某双木亭施工大样详图
材料:钢筋I级-、II级-;混凝土C20,垫层C10。砌体部分采用MU10标准砖,M5水泥砂浆。2、钢筋保护层:基础40mm。3、本图标高相当于绝对标高参建筑图。供各位参考
双坡水木亭设计施工图
双坡水木亭设计施工图,包括平面图,立面图等,供各位参考
双亭设计以及大样图
现场必须待提供正式地质勘察报告并经复核确认无误后方可进行基础施工.且基坑必须进行验槽.发现有异常情况时请及时反馈设计,共同解决.供各位参考
双亭设计施工图
双亭设计施工图1、基础采用现浇钢筋砼。2、基底做法:素土夯实,150厚碎石垫层,100厚C10素砼垫层。3、基础砼为C20砼,垫层砼为C10砼。供各位参考
某水帘亭及跌水施工详图
某水帘亭及跌水施工详图,包括栈桥平面图,栈桥结构平面图,水帘亭平面图,水帘亭柱定位图,跌水局部平面图等,供各位参考
景观亭设计施工图
本工程位于武汉市汉水公园内,为钢筋混凝土一层仿古方亭,占地面积16平方米,檐口标高2.99米,所标注尺寸均以毫米为单位,标高以米为单位,建筑定位现场确定。供各位参考
某水榭建筑施工图
某水榭建筑施工图,包括水榭平面,水榭屋顶平面,立面,剖面等,供各位参考
某水榭设计方案施工图
某水榭设计方案施工图,包括平面图,正立面图,纵向剖面图,檐橼大样,±0.000梁结构平面图,±0.000板结构平面图,基础平面图等,供各位参考
水闸四角亭设计图
1.图中尺寸以毫米计,高程以米计。本图采用大坝高程系。2.楼地面做法:冲洗一层地面,用1:2水泥砂浆光面厚20;冲洗二层楼面用碎拼大理石,做法见98ZJ001楼12。
四方重檐亭设计施工图
四方重檐亭设计施工图,包括四方重檐亭立面图,四方重檐亭平面图,下檐屋架、上檐屋架平面,下檐屋面、上檐屋面平面等,供各位参考
某四角古亭大样详图
1.本建筑设计中,由于无地质资料,设地基承载力为50kpa。2块石垫层必须位于粘土层上,如挖至此标高时土质与设计不符,必须请设计人员现场处理。
四角凉亭设计施工图
四角凉亭设计施工图,内容详细,供各位参考
首页
上一页
下一页
尾页