首页
首页
园林图纸
小品及配套设施
小品及配套设施
艺术花架施工图
艺术花架施工图包括植草砖铺装平面大样图、右侧入口铺装平面图、右侧入口放线图等
流水景亭施工图
流水景亭施工图包括索引图、D区流水景亭屋顶平面图、D区流水景亭立面图、D区流水景亭剖面图等
门卫施工图
门卫施工图包括平面图、立面图、剖面图等。供大家参考!
多种栏杆设计图
多种栏杆设计图,供大家参考!
透水路面做法详图
透水路面做法详图,供大家参考!
铁艺围墙施工图纸
铁艺围墙施工图纸包括铁艺围墙局部立面图、铁艺围墙局部平面图、伸缩缝做法图、剖面图
景桥施工详图
景桥施工详图包括景桥平面大样图、景桥正立面大样图、地伏石正立面大样图、望柱正立、剖面大样图等
亭子施工图
亭子施工图包括方亭顶平面图、方亭立面图、方亭底平面图、方亭基础平面图
门卫竣工图
1.本喷灌使用自来水,经管道加压泵加压,其位置位于北门卫东侧,电源控制在门卫房。2.本喷灌自动喷灌系统和洒水栓系统单独操作(图中粗线为自动喷灌系统,细线为人控洒水系统)
古建园林亭榭设计图
古建园林亭榭设计图,包括爱晚亭立面,爱晚亭柱平面,望海楼一层平面图,正立面等,供各位参考
小区入口门楼施工图
小区入口门楼施工图,包括平面图、门卫室横切面及花架拖梁平面、放大大样、门卫室及花架顶平面、门卫室及花架立面图、门卫室立面图等
候车亭施工图
候车亭施工图,供大家参考!
一孔人行拱景观桥施工图
一孔人行拱景观桥施工图包括平面图、立面图、剖面图等。供大家参考!
车行道种植槽路缘石详图
车行道种植槽路缘石详图,供大家参考!
四角亭施工图
四角亭施工图,包括平面图、立面图、剖面图等。供大家参考!
砂岩浮雕设计图
砂岩浮雕设计图,供大家参考!
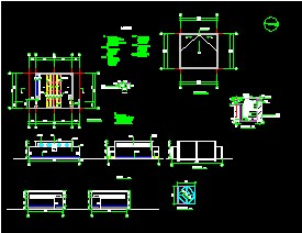
某特色亭施工图
某特色亭大样图:特色景亭剖面图、特色景基底平面图、+3.4m标高结构平面布置图、特色景亭平面图、特色景亭顶平面图、特色景亭立面图、特色景亭仰视图。
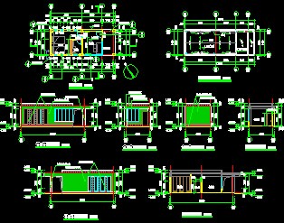
厕所施工图
厕所施工图包括屋顶平面图、一层平面图、剖面图、镂空花艺砖
屋顶花园施工图
屋顶花园施工图,供大家参考!
商业区景观施工图纸
商业区景观施工图纸包括树池座凳底平面图、树池座凳立面图、树池立面图、平地树池A剖面图
首页
上一页
下一页
尾页