首页
首页
园林图纸
小品及配套设施
小品及配套设施
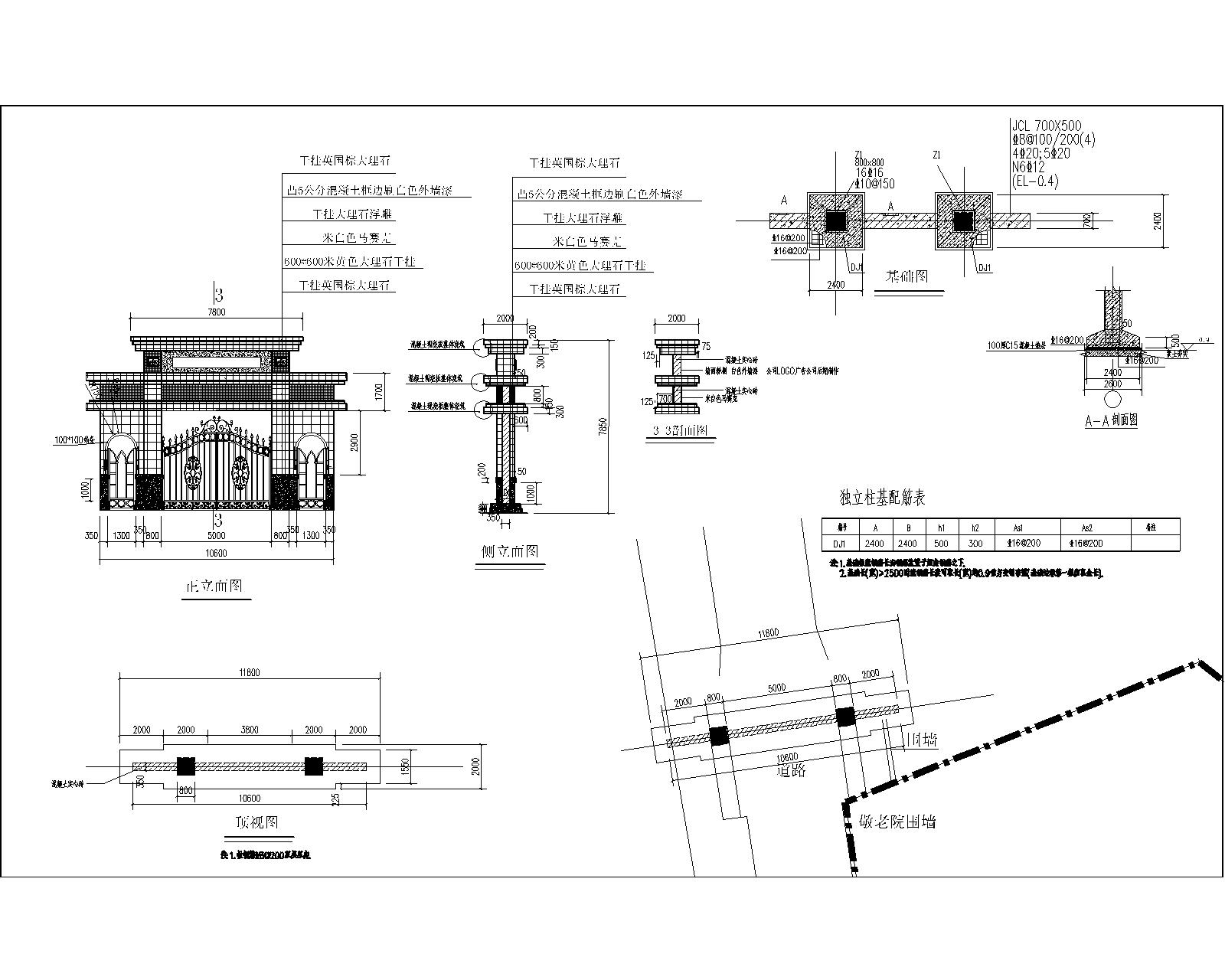
花架式门道施工大样图
花架式门道施工大样图:标准门道B正立面图、标准门道B侧立面图、节点详图、标准门道B平面布置图、标准门道B基础平面图、柱(ZJ)基详图,本文为dwg格式,供大家参考!
弧形花架设计图
弧形花架设计图:弧形花架剖面、详图、弧形花架平面、弧形花架剖面、详图、花架平、立面图等等,本文为dwg格式,供大家参考!
欧式廊施工图
欧式廊施工图:柱式(A)结构、欧式柱廊(B)正立面图、欧式柱廊(A)正立面图等等,本文为dwg格式,供大家参考!
折形花架设计图纸
折形花架设计图纸:平、立面、节点详图、基础平面图、结构平面、节点立面等等,本文为dwg格式,供大家参考!
整套景观施工图亭桥花架廊详图
整套景观施工图亭桥花架廊详图:花架横梁配筋、亭顶屋面配筋图、亭顶结构平面布置图、亭基础平面图、双亭屋面结构布置图等等,本文为dwg格式,供大家参考!
花架平、立面图
花架平、立面图,本文为dwg格式,供大家参考!
花架施工图
花架施工图:花架平面图、花架侧立面图、花架柱点布置平面图、花架正立面图、花架结构大样、柱墩剖面等等,本文为dwg格式,供大家参考!
弧形花架过道大样
弧形花架过道大样:弧形花架平面、弧形花架正立面、弧形梁大样、弧形花架侧立面等等,本文为dwg格式,供大家参考!
花园环境设计工程小品
花园环境设计工程小品:柱网及梁平面图、基础平面布置图、平面及尺寸标注图、铺装及底层平面图、独立基础大样等等,本文为dwg格式,供大家参考!
花架大样详图
花架大样详图:花架立面图、花架顶平面图、花架平面图、花架柱基础剖面图等等,本文为dwg格式,供大家参考!
爬山廊施工图
爬山廊施工图:爬山廊平面图、爬山廊顶面图、爬山廊立面图、爬山廊A-A剖面图、剖面图、爬山廊B-B剖面图、爬山廊立面图、爬山廊护栏立面图等等,本文为dwg格式,供大家参考!
河畔连廊施工大样图
河畔连廊施工大样图,本文为dwg格式,供大家参考!
花钵花坛设计详图
花钵花坛设计详图,供大家参考!
水池花架设计图纸
水池花架设计图纸:花架顶面图、花架基础平面图、花架剖面等等,本文为dwg格式,供大家参考!
弧形花架设计图
弧形花架设计图:弧形花架剖面、详图、弧形花架平面、弧形花架剖面、详图、花架平、立面图等等,本文为dwg格式,供大家参考!
花架平面、立面图
花架平面、立面图:花架及铺地总平面、花架侧立面、花架正立面、花架顶平面等等,本文为dwg格式,供大家参考!
波形悬索廊施工图
波形悬索廊施工图:波形悬索廊地面平面、波形悬索廊平面、剖面、楼梯立面、波形悬索廊二层看台平面等等,本文为dwg格式,供大家参考!
圆形单柱花架详图
圆形单柱花架详图:花架结构平面、花架平面、花架结构平面、花架基础平面等等,本文为dwg格式,供大家参考!
三段式花架设计图纸
三段式花架设计详图,本文为dwg格式,供大家参考!
休闲廊施工大样图
休闲廊施工大样图:休闲廊详图、休闲廊大样图、剖面图、硬质铺装、休闲坐凳平面图等等,本文为dwg格式,供大家参考!
首页
上一页
下一页
尾页