首页
首页
园林图纸
小品及配套设施
小品及配套设施
北苑水电图及说明
北苑水电图及说明包括回族历史人物园北园给水平面图二、回族历史人物园北园给水平面图三、回族历史人物园北园给水平面图一、回族历史人物园北园排水平面图二
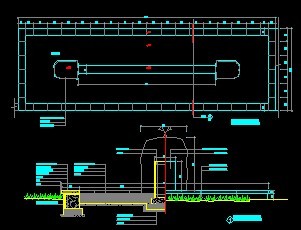
园林泳池大样图
园林泳池大样图,供大家参考!
某小区花架设计图
某小区花架设计图包括立面、灯箱布置图、灯箱详图、廊架顶漏窗3、廊架顶漏窗2、500宽坐凳详图、300宽坐凳详图、紫藤廊架底平面等
art-deco风格围墙设计图
art-deco风格围墙设计图包括伸缩缝处立面图、剖面图、铁艺花饰大样、标高处平面图、立面图等
一般台阶做法台阶施工图
一般台阶做法台阶施工图,供大家参考!
格子花架的施工图
格子花架的施工图包括花架平面图、花架立面图、基础平面图、2-2剖面
某小区玻璃更亭施工图
某小区玻璃更亭施工图,供大家参考!
小型雕塑详细做法施工图
小型雕塑详细做法施工图包括平面、剖面、立面、剖面
浮雕图块
浮雕图块,供大家参考!
大型社区入口铁门设计图
大型社区入口铁门设计图,供大家参考!
CAD青石栏杆图块
包括栏板、平面、柱断面图、石雕花结示意、榫头图、青石栏杆大样图
园林植物等平面图块
园林植物等平面图块,供大家参考!
建筑园林各种图块
建筑园林各种图块,供大家参考!
各式各样的亭子设计图
各式各样的亭子设计图包括1、2#方亭屋顶构架立面图、木屋脊B-B剖面图、1、2#方亭屋顶平面图、2#方亭铺装平面图、转角亭屋架平面图、转角亭平面图
cad民俗文化浮雕示意图
cad民俗文化浮雕示意图包括民俗文化示意图、三国文化示意图、民俗文化示意图、民俗文化示意图
花架、门廊、木凳施工图
花架、门廊、木凳施工图包括剖面详图、木门架平面图、木门架立面图、景观廊六平面图、木座凳平面详图、景观廊六立面图等
某公园景观的图块
某公园景观的图块,供大家参考!
亨特旋转喷头CAD安装节点大样标准图集
亨特旋转喷头CAD安装节点大样标准图集,供大家参考!
小品及配套设施详图
小品及配套设施详图包括休息平面图、锻炼平面图、亭子平面图 、锻炼立面图、亭子立面图、休息剖面图等
各种室内用品CAD图块集
各种室内用品CAD图块集包括 建筑构件与卫浴立面图、卫生洁具立面图类、灯具、室内装饰物、电器立面图类、卫生洁具平面图类、家电、厨具、钢琴、办公桌、汽车类
首页
上一页
下一页
尾页