首页
分享
首页
装修图纸
内容
某菜市场施工图纸
资料大小
:784 KB
运行环境
:NT/2000/XP/2003/Vista
资料语言
:简体中文
资料评级
:
授权形式
:资料共享
更新时间
:2016-12-28 09:19
发布作者
:cgminmin
插件情况
:
无插件,请放心使用
文件类型
:
RAR
解压密码
:gc5.com
安全检测
:
瑞星
江民
卡巴斯基
金山
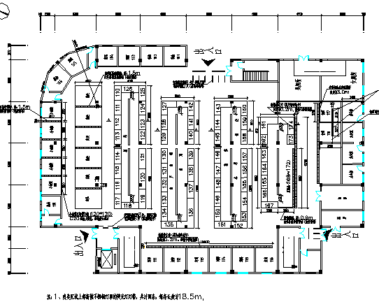
介绍: 某菜市场施工图纸包括二层照明布置平面图、二层插座布置平面图、二层给排水布置平面图、一、二层拆除平面图、改建平面图等
查看全文
点击进入下载
(需要
0
积分)
相关文章
菜市场建筑施工图
20110401
某菜市场电气施工图纸
20180120
菜市场建筑施工图
20120328
菜市场建筑施工图
20161019
某菜市场公厕施工图
20151028
回到顶部
请复制以下网址分享
某菜市场施工图纸
https://m.gc5.com/zxzs/zxtz/10915666.html