首页
首页
装修装饰
装修图纸
装修图纸
二层带阁楼日式别墅装修施工图纸
二层带阁楼日式别墅装修施工图纸包括平面图、天花图、电插座平面图、家具平面图、客厅及饭厅立面图、书房立面图、主人睡房立面图、睡房立面图、主人浴室立面图、浴室立面图等
二层带阁楼带架空层别墅装修施工图纸
二层带阁楼带架空层别墅装修施工图纸包括平面图、天花图、电插座平面图、家具平面图、客厅及饭厅立面图、书房立面图、主人睡房立面图、睡房立面图、主人浴室立面图、浴室立面图等
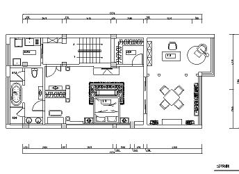
两居室住宅样板房装修施工图纸
两居室住宅样板房装修施工图纸包括平面图、天花图、电插座平面图、傢俬平面图、客厅及饭厅立面图、次卧立面图、主卧立面图、浴室立面图等,供大家参考!
三层带地下室别墅室内精装修施工图纸
三层带地下室别墅室内精装修施工图纸包括平面图、天花图、电插座平面图、家具平面图、客厅及饭厅立面图、书房立面图、主人睡房立面图、睡房立面图、主人浴室立面图、浴室立面图等
某二层高档别墅装修施工图纸
某二层高档别墅装修施工图纸包括平面图、天花图、电插座平面图、家具平面图、客厅及饭厅立面图、书房立面图、主人睡房立面图、睡房立面图、主人浴室立面图、浴室立面图等,供大家参考!
二层带地下室别墅装修平面设计图(新古典欧式)
二层带地下室别墅装修平面设计图包括一层平面图、二层平面图、三层平面图、效果图,供大家参考!
三层独栋别墅室内装修施工图纸
三层独栋别墅室内装修施工图纸包括平面图、天花图、电插座平面图、傢俬平面图、客厅及饭厅立面图、书房立面图、睡房立面图、浴室立面图等,供大家参考!
欧式二层别墅室内装修施工图纸
欧式二层别墅室内装修施工图纸包括平面图、天花图、电插座平面图、家具平面图、客厅及饭厅立面图、书房立面图、主人睡房立面图、睡房立面图、主人浴室立面图、浴室立面图等,供大家参考
某二层小型别墅室内装修施工图纸
某二层小型别墅室内装修施工图纸包括平面图、天花图、电插座平面图、家具平面图、客厅及饭厅立面图、书房立面图、主人睡房立面图、睡房立面图、主人浴室立面图、浴室立面图等
两居室住宅装修施工图纸
两居室住宅装修施工图纸包括平面图、天花图、电插座平面图、傢俬平面图、客厅及饭厅立面图、书房立面图、睡房立面图、浴室立面图等,供大家参考!
二层别墅装修施工图纸(现代简约唯美风格)
二层别墅装修施工图纸包括平面图、天花图、电插座平面图、傢俬平面图、客厅及饭厅立面图、书房立面图、睡房立面图、浴室立面图等,供大家参考!
两居室住宅样板房装修施工图(现代风格米粉色系)
两居室住宅样板房装修施工图包括平面图、天花图、电插座平面图、傢俬平面图、客厅及饭厅立面图、书房立面图、睡房立面图、浴室立面图等,供大家参考!
现代风格两居室住宅样板房装修施工图
现代风格两居室住宅样板房装修施工图包括平面图、天花图、电插座平面图、傢俬平面图、客厅及饭厅立面图、书房立面图、睡房立面图、浴室立面图等,供大家参考!
二居室住宅装修施工图纸(田园风格)
二居室住宅装修施工图纸包括平面图、天花图、电插座平面图、傢俬平面图、客厅及饭厅立面图、次卧立面图、主卧立面图、浴室立面图等,供大家参考!
三房两厅两卫住宅装修施工图纸(美式简约)
三房两厅两卫住宅装修施工图纸包括平面图、天花图、电插座平面图、傢俬平面图、客厅及饭厅立面图、书房立面图、睡房立面图、浴室立面图等,供大家参考!
现代简约风格三居室住宅装修施工图纸
现代简约风格三居室住宅装修施工图纸包括平面图、天花图、电插座平面图、傢俬平面图、客厅及饭厅立面图、书房立面图、睡房立面图、浴室立面图等,供大家参考!
三居室住宅装修施工图纸(简约新中式风格)
三居室住宅装修施工图纸包括平面图、天花图、电插座平面图、傢俬平面图、客厅及饭厅立面图、书房立面图、睡房立面图、浴室立面图等,供大家参考!
三居室住宅样板间装修施工图纸(现代简约风格)
三居室住宅样板间装修施工图纸包括平面图、天花图、电插座平面图、傢俬平面图、客厅及饭厅立面图、书房立面图、睡房立面图、浴室立面图等,供大家参考!
两房两厅住宅装修施工图纸(清新简约风格)
两房两厅住宅装修施工图纸包括平面图、天花图、电插座平面图、傢俬平面图、客厅及饭厅立面图、书房立面图、睡房立面图、浴室立面图等,供大家参考!
简约复式别墅样板房装修施工图纸
简约复式别墅样板房装修施工图纸包括平面图、天花图、电插座平面图、傢俬平面图、客厅及饭厅立面图、书房立面图、睡房立面图、浴室立面图等,供大家参考!
首页
上一页
下一页
尾页