首页
首页
装修装饰
装修图纸
装修图纸
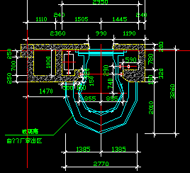
旋转楼梯装修节点详图
旋转楼梯装修节点详图包括支撑与墙连接图、楼梯平台支撑布置图、楼梯端板与平台板端板连接、地下室楼梯间图、楼梯间一层平面图大样。
旋转楼梯装修施工图纸
旋转楼梯装修施工图纸包括楼梯间立面示意图、楼梯剖面大样图、楼梯立面大样图。
实用旋转楼梯全套装修图纸
实用旋转楼梯全套装修图纸包括旋转楼梯平面图、旋转楼展开剖面图、梯段一平面图、梯段二平面图等。
室内钢质楼梯装修图纸
室内钢质楼梯装修图纸包括钢楼梯扶手栏杆等,仅供大家参考!
自动扶梯装修图纸
自动扶梯装修图纸包括地下一层平面图、一层平面图、二~三层平面图、四层平面图、五~六层平面图、剖面图、裙房商场电梯井道平面图、裙房商场电梯井道七层平面图等。
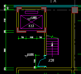
楼梯大样装修图纸
楼梯大样装修图纸包括一层平面图、二至四层平面图、五层平面图、剖面图、地下一层平面图。
自动扶梯装修图纸
自动扶梯装修图纸包括一层平面图、二至四层平面图、五层平面图、剖面图、自动扶梯大样图。
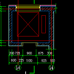
客货梯井道大样装修图纸
客货梯井道大样装修图纸包括客梯1和2井道剖面图、客梯3井道剖面图、客梯4井道剖面图、一层平面图、二至五层平面图。
钢楼梯大样装修图纸
钢楼梯大样装修图纸包括楼梯平面图、钢柱基础节点、斜梁基础节点、钢柱、楼梯踏步。
观光电梯装修详图
观光电梯装修详图包括井道1-3层平面图、水箱层平面图、泳池侧壁详图、电梯屋顶机房平面详图、电梯井道地下层平面详图、电梯井道机坑平面图、电B井道剖面图等。
电梯节点大样装修图纸
电梯节点大样装修图纸包括电梯基坑平面图、电梯井道平面图、电梯机房平面图、电梯剖面图。
电梯大样装修图纸
电梯大样装修图纸包括剖面图、基坑层平面图、标准层平面图、机房层平面图。
电梯间及井道装修详图
电梯间及井道装修详图包括井道剖面图、厅门留孔图、一单元井道平面图、一单元机房平面图、三单元机房平面图。
电梯间立面装修图集
电梯间立面装修图集包括立面图、顶棚布置图、剖面图、大样图。仅供大家参考!
多种楼梯大样装修图纸
多种楼梯大样装修图纸包括楼梯剖面图、顶层平面图、底层平面图。仅供大家参考!
电梯骄厢装修竣工图纸
电梯骄厢装修竣工图纸包括电梯骄厢立面图、电梯骄厢剖面图。仅供大家参考!
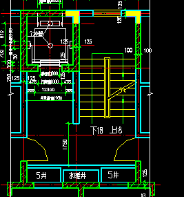
楼梯电梯卫生间装修大样
楼梯电梯卫生间装修大样图纸包括剖面图、楼梯五层平面图、楼梯一层平面图、楼梯二层平面图、楼梯三~四层平面图、机房平面布置图、卫生间(三)大样等。
自动扶梯装修大样图纸
自动扶梯装修大样图纸包括中间支撑详图、中间支撑详图(俯视图)、上下支撑详图(对称)。
办公楼楼梯装修大样图纸
办公楼楼梯装修大样图纸包括甲厨大样、二十六层平面图、五~二十五层平面图、水箱间平面、一层平面图、二层平面图、地下层平面图、自动人行道大样、屋顶构架平面大样等。
富士电梯装修图纸
富士电梯装修图纸包括电梯土建总体布置图、机房平面布置图、坑平面布置图、井道平面布置图、1号预埋件型式图、2至5号预埋件型式图、遇埋安装图。
首页
上一页
下一页
尾页