使用详解如下:
1.用AutoCAD2013中文版同时打开多个图形文件。
2.单击AutoCAD2013中文版“快速查看图形”按钮。

图01
3.弹出打开图形的缩略图,单击其中的任意缩略图,AutoCAD2013中文版将切换到所选择的图形界面。

图02
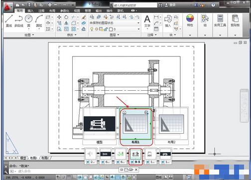
4.把鼠标移到AutoCAD2013图形缩略图上,将弹出模型空间和图纸空间(布局空间)切换缩略图。

图03
5.将鼠标移到模型空间或图纸空间(布局空间)缩略图上,单击选择空间模式,AutoCAD2013中文版将切换到所选择的图形空间界面。(如这里我们选择其中一幅图的布局1空间)。

——————————————————————————————————————————————————————————————————————————————
相关推荐: