首页

  1. 首页
  2. CAD安装教程
  3. 内容

CAD入门教程 二十四:CAD基线,继续与快速引线

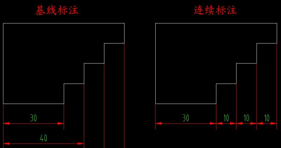
基线和继续

提前是都要以线性标注作为基准做出下一个标注。
 
 
基线
 
始终是以线性标注的起点作为基准点做出下一个标注。
 
 
继续
 
都是以结束点为起点做出下个标注。
 
 
快速引线
 
解释和注释的作用。
 
指定引线的两条线后,取消文字的输入,用文字工具来输入文字。

——————————————————————————————————————————————————————————————————————————————

相关推荐:

CAD入门教程一:CAD相关基础知识点

CAD入门教程二:CAD基础知识技巧

CAD入门教程三:关于CAD线及角度知识

CAD入门教程四:水平与垂直

相关文章

回到顶部
请复制以下网址分享
CAD入门教程 二十四:CAD基线,继续与快速引线
https://m.gc5.com/cad/cadaz/10279680.html