首页

  1. 首页
  2. 电气图纸
  3. 内容

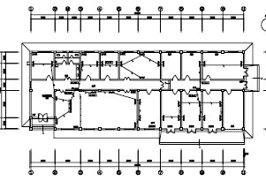
某输入泵站综合控制室水电施工图

  • 资料大小:1.33 MB
  • 运行环境:NT/2000/XP/2003/Vista
  • 资料语言:简体中文
  • 资料评级
  • 授权形式:资料共享
  • 更新时间:2013-06-22 11:39
  • 发布作者:YY-蜗牛角杯
  • 插件情况 无插件,请放心使用
  • 文件类型 RAR
  • 解压密码:gc5.com
  • 安全检测 瑞星 江民 卡巴斯基 金山
某输入泵站综合控制室水电施工图
介绍: 某输入泵站综合控制室水电施工,设计范围包括:动力配电平面、等电位联结及接地、照明配电平面、插座配电、给排水管线布置等。
点击进入下载 (需要 0 积分)

相关文章

回到顶部
请复制以下网址分享
某输入泵站综合控制室水电施工图
https://m.gc5.com/dqgc/dqtz/10509335.html