首页
分享
首页
电气图纸
内容
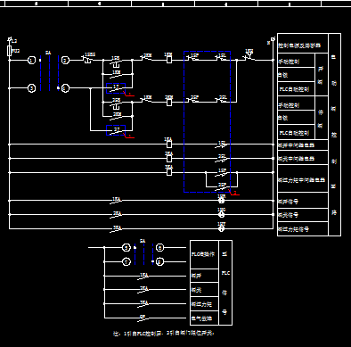
电动闸阀、球阀控制原理图
资料大小
:43.5 KB
运行环境
:NT/2000/XP/2003/Vista
资料语言
:简体中文
资料评级
:
授权形式
:资料共享
更新时间
:2016-08-23 09:57
发布作者
:擦拉黑哟
插件情况
:
无插件,请放心使用
文件类型
:
RAR
解压密码
:gc5.com
安全检测
:
瑞星
江民
卡巴斯基
金山
介绍: 电动闸阀、球阀控制原理图,供大家参考!
查看全文
点击进入下载
(需要
0
积分)
相关文章
电动闸阀、球阀控制原理图
20160823
电动闸阀、球阀控制原理图
20171010
电动闸阀、球阀控制原理图
20121214
回到顶部
请复制以下网址分享
电动闸阀、球阀控制原理图
https://m.gc5.com/dqgc/dqtz/10896562.html